Vuokrataan toimistotilat - Helsinki
Urho Kekkosen Katu 3-7, Keskusta, 00100 Helsinki #10788600
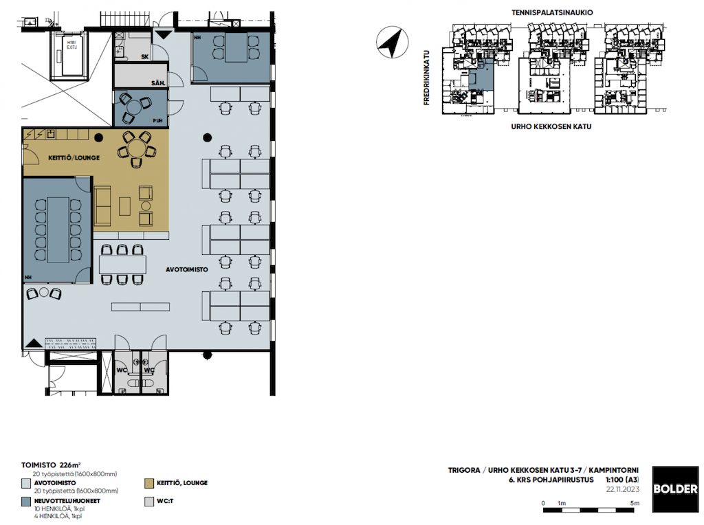
Vuokrataan näyttävä 6. kerroksen toimistotila Kampin keskuksesta.
Kampintorni on osa Kampin kauppakeskuksen yhteydessä sijaitsevaa toimistorakennuskokonaisuutta Trigoraa. Trigora on rakennettu 2005, toimistotilaa kolmessa tornissa yhteensä 12 000 m2 ja sen on suunnitellut Pekka Helin. Torneista on suora yhteys kauppakeskukseen, joten kattavat palvelut kuten ravintolamaailma, kaupat, julkiset kulkuvälineet ja parkkihallit ovat välittömässä läheisyydessä.
Lisätietoja soita 020 730 4530 tai info@repoint.fi. Palvelumme on tilanhakijalle ilmainen.
Repoint Toimitilat Oy
Itälahdenkatu 22 B, 00210 Helsinki
Näytä puhelinnumero
020 730 4530
Lisätietoja soita Näytä puhelinnumero 020 730 4530 tai info@repoint.fi
https://repoint.fi/