Vuokrataan toimistotilat - Espoo
Metsänpojankuja 4, Pohjois-Tapiola, 02130 Espoo #10788511
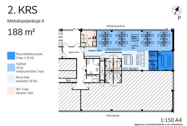
Vuokrattavana avotyötilaa ja työhuoneita sisältävä toimisto sujuvalla sijainnilla Pohjois-Tapiolassa. Huoneiston pinta-ala on 188 m². Lisäksi vuokraan jyvitetään 11,5 m² osuus aulan yhteiskäyttöisistä tiloista.
Osoite
Metsänpojankuja 4, 02130 Espoo
Tilatyyppi
Toimistotilaa
199 m2
Muuta
Metsänpojankuja 4 on siisti toimisto- ja liikekiinteistö hyvien liikenneyhteyksien varrella Pohjois-Tapiolassa. Kiinteistössä toimii tällä hetkellä mm. ABC- liikenneasema, joka tarjoaa palveluitaan pääsääntöisesti 24h (mm. S-market, polttoaineenjakelu, latauspalvelu) kiinteistössä asioiville.
Kiinteistö sijaitsee loistavalla paikalla Kehä I:n varrella kävelymatkan päässä Aalto Yliopiston metroasemalta. Liikenneyhteydet ovat hyvät niin omalla autolla kuin julkisillakin. Liikenneaseman palveluiden lisäksi lähialueella sijaitsee mm. muita lounasravintoloita ja monia muita palveluita.
Kehä I:tä pitkin kulkevat lukuisat bussit, ja pikaraitiolinja, samoin kuin runkolinja 550, joka palvelee hyvin myös Metsäpojankujan toimistovuokralaisia. Lähin metroasema on Aalto-yliopisto, josta kävelee alle 15 minuutissa. Tapiolan keskus ja Kauppakeskus Ainoan kattavat palvelut ovat vain noin 2 km päässä. Kiinteistöltä on myös vain noin 8 minuutin kävelymatka merelliselle Laajalahden luonnonsuojelualueelle sekä Espoon rantaraitille.
Kiinteistö sijaitsee loistavalla paikalla Kehä I:n varrella kävelymatkan päässä Aalto Yliopiston metroasemalta. Liikenneyhteydet ovat hyvät niin omalla autolla kuin julkisillakin. Liikenneaseman palveluiden lisäksi lähialueella sijaitsee mm. muita lounasravintoloita ja monia muita palveluita.
Kehä I:tä pitkin kulkevat lukuisat bussit, ja pikaraitiolinja, samoin kuin runkolinja 550, joka palvelee hyvin myös Metsäpojankujan toimistovuokralaisia. Lähin metroasema on Aalto-yliopisto, josta kävelee alle 15 minuutissa. Tapiolan keskus ja Kauppakeskus Ainoan kattavat palvelut ovat vain noin 2 km päässä. Kiinteistöltä on myös vain noin 8 minuutin kävelymatka merelliselle Laajalahden luonnonsuojelualueelle sekä Espoon rantaraitille.
Vapautuu
Kysy
Rakennusvuosi
1983
Kerros
2
Ota yhteyttä
Juhola Asset Management Oy
Itsehallintokuja 4 02600 Espoo
Näytä puhelinnumero
040 4551 390
Leena Juhola
Pyydä lisätietoa
