Vuokrataan toimistotilat - Espoo
Maarinportti, Metsänpojankuja 1, Pohjois-Tapiola, 02130 Espoo #10788472
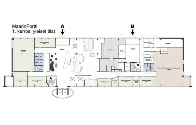
Esimerkkiratkaisu kahden toimistokerroksen kokoisesta toimitilasta, johon saa tilankäyttöratkaisusta riippuen n. 100 – 200 työpistettä. Tulevalla käyttäjällä on mahdollisuus vaikuttaa tilaratkaisuihin sekä materiaalivalintoihin.
Osoite
Metsänpojankuja 1, 02130 Espoo
Tilatyyppi
Toimistotilaa
3495 m2
Tilajako
Jaettavissa
Muuta
Maarinportti on vuonna 2025 saneerauksesta valmistuva, täysin uudistettu toimistokokonaisuus osoitteessa Metsäpojankuja 1. Pohjois-Tapiolan ja Otaniemen raja-alueella sijaitseva 6-kerroksinen toimitilakiinteistö modernisoidaan ja saneerataan vastaamaan nykypäivän yritysten moninaisia tarpeita. Uudistuksen myötä syntyy vastuullinen ja tyylikäs pääkonttoritason toimitilakiinteistö.
Kiinteistön suunnittelussa on huomioitu hyvinvointia tukevia työympäristöominaisuuksia, kuten sosiaalinen kanssakäyminen, terveellinen ruokailu, aktiivisuus ja liikunta sekä henkistä hyvinvointia edistävät kategoriat. Tämän lisäksi tilasuunnittelussa on kiinnitetty erityishuomiota muun muassa sisäilman laatuun ja ilmanvaihtoon, valaistukseen sekä akustiikkaan.
Ennen tilojen valmistumista on vuokralaisilla mahdollisuus suunnitella juuri omaan tarpeeseen soveltuvat tilaratkaisut ja yhdessä sisustussuunnittelijan kanssa vaikuttaa myös mm. valittaviin pintamateriaaleihin ja niiden väreihin.
Kehä I:tä pitkin kulkevat lukuisat bussit, ja pikaraitiolinja, samoin kuin runkolinja 550 palvelee erityisen hyvin myös Maarinporttiin saapuvia. Lähin metroasema on Aalto-yliopisto, josta kävelee kohteeseen alle 15 minuutissa. Tapiolan keskus ja Kauppakeskus Ainoan kattavat palvelut ovat vain noin 2 km päässä. Kiinteistöltä on myös vain noin 8 minuutin kävelymatka merelliselle Laajalahden luonnonsuojelualueelle sekä Espoon rantaraitille.
Vieraille ja vuokralaisillekin pysäköintipaikkoja on tarjolla kiinteistön pihalla ja reilusti lisää pysäköintipaikkoja löytyy lämpimästä pysäköintihallista.
Saneerauksen suunnittelun ja toteutuksen tavoitteena on saavuttaa LEED Platinum -tason ympäristösertifikaatti. Platinum on kansainvälisen LEED-sertifiointijärjestelmän korkein taso, joka kertoo ympäristöasioiden erinomaisesta huomioimisesta kiinteistössä.
Kiinteistön suunnittelussa on huomioitu hyvinvointia tukevia työympäristöominaisuuksia, kuten sosiaalinen kanssakäyminen, terveellinen ruokailu, aktiivisuus ja liikunta sekä henkistä hyvinvointia edistävät kategoriat. Tämän lisäksi tilasuunnittelussa on kiinnitetty erityishuomiota muun muassa sisäilman laatuun ja ilmanvaihtoon, valaistukseen sekä akustiikkaan.
Ennen tilojen valmistumista on vuokralaisilla mahdollisuus suunnitella juuri omaan tarpeeseen soveltuvat tilaratkaisut ja yhdessä sisustussuunnittelijan kanssa vaikuttaa myös mm. valittaviin pintamateriaaleihin ja niiden väreihin.
Kehä I:tä pitkin kulkevat lukuisat bussit, ja pikaraitiolinja, samoin kuin runkolinja 550 palvelee erityisen hyvin myös Maarinporttiin saapuvia. Lähin metroasema on Aalto-yliopisto, josta kävelee kohteeseen alle 15 minuutissa. Tapiolan keskus ja Kauppakeskus Ainoan kattavat palvelut ovat vain noin 2 km päässä. Kiinteistöltä on myös vain noin 8 minuutin kävelymatka merelliselle Laajalahden luonnonsuojelualueelle sekä Espoon rantaraitille.
Vieraille ja vuokralaisillekin pysäköintipaikkoja on tarjolla kiinteistön pihalla ja reilusti lisää pysäköintipaikkoja löytyy lämpimästä pysäköintihallista.
Saneerauksen suunnittelun ja toteutuksen tavoitteena on saavuttaa LEED Platinum -tason ympäristösertifikaatti. Platinum on kansainvälisen LEED-sertifiointijärjestelmän korkein taso, joka kertoo ympäristöasioiden erinomaisesta huomioimisesta kiinteistössä.
Vapautuu
Kysy
Rakennusvuosi
1996
Uudiskohde
Jaettavissa
Ota yhteyttä
Juhola Asset Management Oy
Itsehallintokuja 4 02600 Espoo
Näytä puhelinnumero
040 4551 390
Leena Juhola
Pyydä lisätietoa
