Vuokrataan toimistotilat - Espoo
Aallonharja, Tekniikantie 4, Otaniemi, 02150 Espoo #10788418
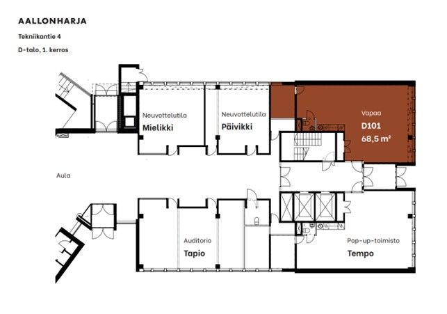
D-talon 1. kerroksen uudenveroinen, remontoitu ja valmiiksi kalustettu toimistohuoneisto, jossa avotila, 1 huone, avokeittiö ja 1 wc.
Osoite
Tekniikantie 4, 02150 Espoo
Tilatyyppi
Toimistotilaa
69 m2
Muuta
Aallonharja sijaitse aivan Otaniemen vesitornin kupeessa, joten paikalle on helppo suunnistaa kauempaakin. Keskeisellä paikalla sijaitseva kiinteistö koostuu 4 rakennuksesta ja vuokrattavaa tilaa on yhteensä yli 20 000 neliömetriä. Aallonharjasta löytyy valoisat ja viihtyisät tilat monen kokoisille toimijoille, niin yrityksille kuin yhteisöillekin. Perusteellisessa uudistushankkeessa myös kiinteistöjen talo- ja ilmastointitekniikkaa on päivitetty monelta osin – täällä on miellyttävää tehdä töitä. Kokonaisuuden kruunaa monipuolinen palvelukattaus.
Aallonharjan palveluvalikoimasta voitte valita juuri teille sopivimmat palvelut tarpeenne mukaan:
– Aulapalvelut
– Auditorio
– Kuntosali
– D-talon kattokerroksessa sijaitseva ainutlaatuinen kelosauna
– A-talon laadukas lounasravintola (Waves by Dylan)
– D-talon aulan kahvila, joka palvelee maanantaista perjantaihin ja tarjoaa mm. monipuolista aamiaista.
Kiinteistön tilat ovat valoisia ja viihtyisiä ja mm. sen talo- ja ilmanvaihtotekniikkaa, tilojen ikkunoita ja pintamateriaaleja on uudistettu laajalti viime vuosien aikana. Vuokrattavat tilat suunnitellaan käyttäjän toiveiden mukaisesti huonetiloiksi, avotilaksi tai niiden yhdistelmäksi. Tiloista on mahdollista rakentaa havainnekuvien kaltaisia toimistohuoneistoja, jotka ovat malliesimerkkejä kiinteistön tiloista.
Aallonharjaan pääsee erinomaisesti julkisilla liikennevälineillä: Aalto-yliopiston metroasemalle ja bussipysäkille matkaa on n. 300 m (linjat 108N, 111, 555) ja monet pyöräilijät arvostavat kiinteistön omaa sähköpyöräasemaa . Myös autolla on helppo saapua (Kehä 1:lle 400 m, Länsiväylälle 2,5 km) ja esim. Helsinki-Vantaan lentoasemalle matkaa on n. 22 km. Autopaikkoja pihalla ja pihakannen alla olevassa pysäköintihallissa.
Aallonharjalla on BREEAM Very Good- sertifikaatti, kiinteistön kulutussähkö on peräisin uusiutuvista lähteistä ja sen jätehuolto on järjestetty hiilineutraalisti.
Aallonharjan palveluvalikoimasta voitte valita juuri teille sopivimmat palvelut tarpeenne mukaan:
– Aulapalvelut
– Auditorio
– Kuntosali
– D-talon kattokerroksessa sijaitseva ainutlaatuinen kelosauna
– A-talon laadukas lounasravintola (Waves by Dylan)
– D-talon aulan kahvila, joka palvelee maanantaista perjantaihin ja tarjoaa mm. monipuolista aamiaista.
Kiinteistön tilat ovat valoisia ja viihtyisiä ja mm. sen talo- ja ilmanvaihtotekniikkaa, tilojen ikkunoita ja pintamateriaaleja on uudistettu laajalti viime vuosien aikana. Vuokrattavat tilat suunnitellaan käyttäjän toiveiden mukaisesti huonetiloiksi, avotilaksi tai niiden yhdistelmäksi. Tiloista on mahdollista rakentaa havainnekuvien kaltaisia toimistohuoneistoja, jotka ovat malliesimerkkejä kiinteistön tiloista.
Aallonharjaan pääsee erinomaisesti julkisilla liikennevälineillä: Aalto-yliopiston metroasemalle ja bussipysäkille matkaa on n. 300 m (linjat 108N, 111, 555) ja monet pyöräilijät arvostavat kiinteistön omaa sähköpyöräasemaa . Myös autolla on helppo saapua (Kehä 1:lle 400 m, Länsiväylälle 2,5 km) ja esim. Helsinki-Vantaan lentoasemalle matkaa on n. 22 km. Autopaikkoja pihalla ja pihakannen alla olevassa pysäköintihallissa.
Aallonharjalla on BREEAM Very Good- sertifikaatti, kiinteistön kulutussähkö on peräisin uusiutuvista lähteistä ja sen jätehuolto on järjestetty hiilineutraalisti.
Vapautuu
Kysy
Rakennusvuosi
1990
Kerros
1
Ota yhteyttä
Juhola Asset Management Oy
Itsehallintokuja 4 02600 Espoo
Näytä puhelinnumero
040 4551 390
Leena Juhola
Pyydä lisätietoa
