Vuokrataan toimistotilat - Espoo
Ahventie 4, Haukilahti, 02170 Espoo #10788257
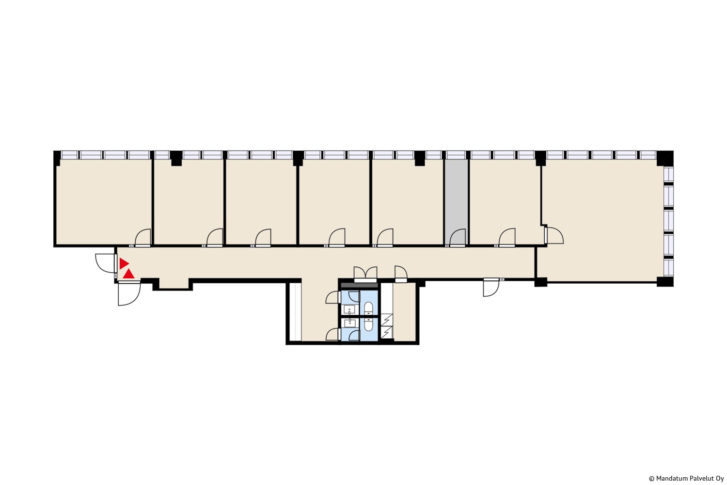
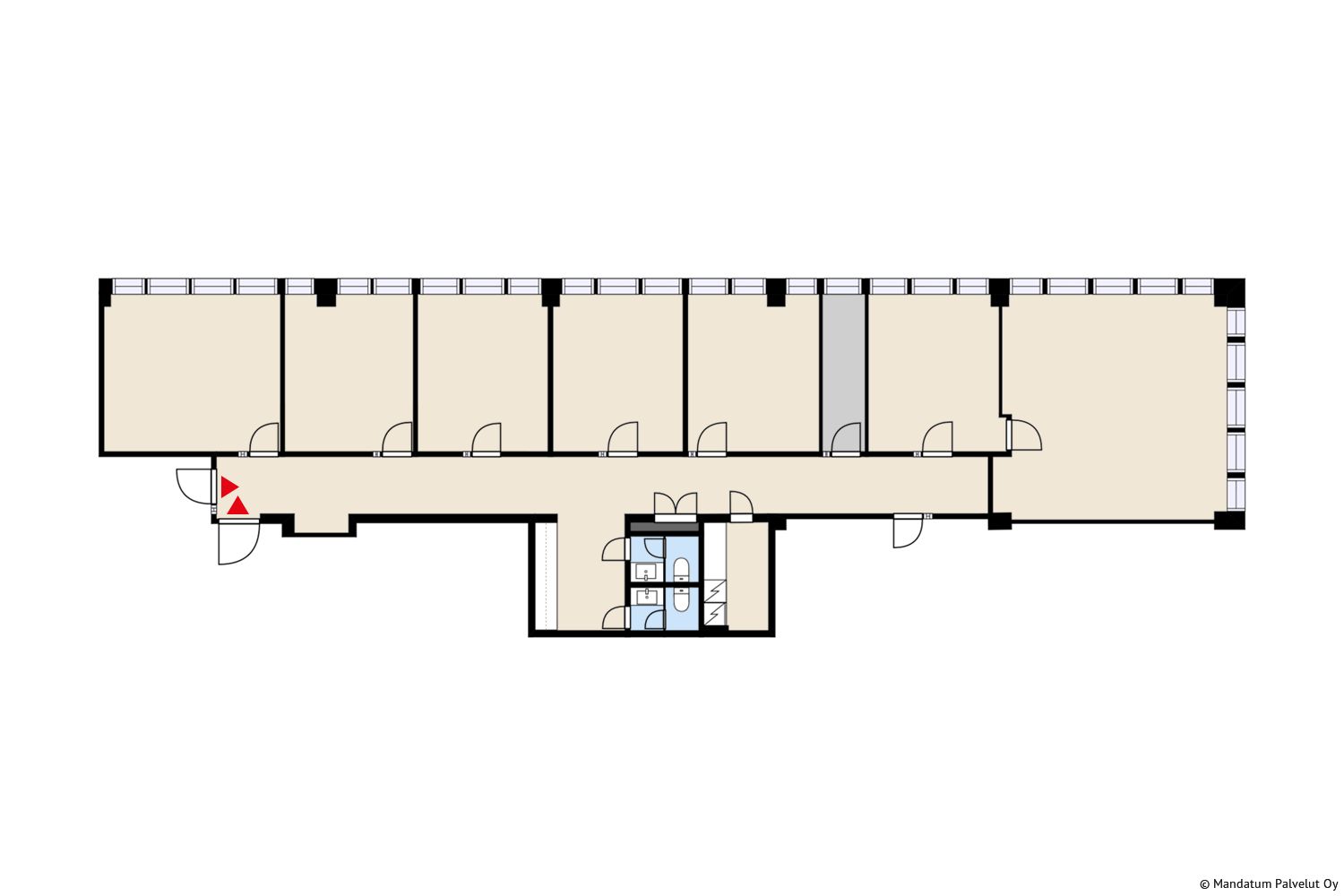
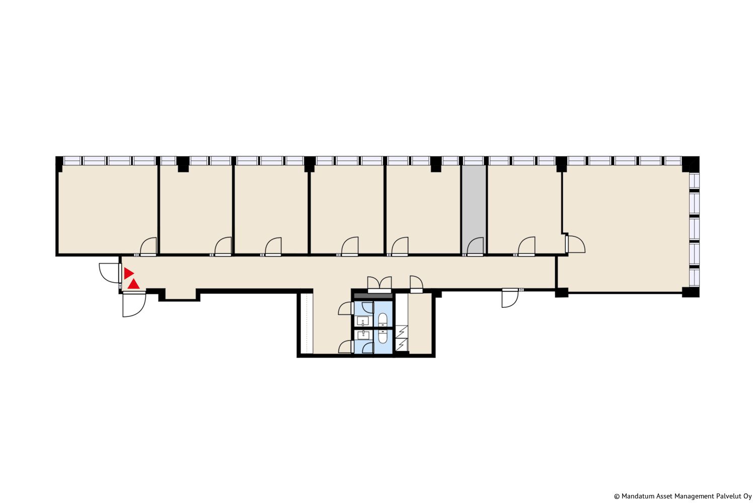
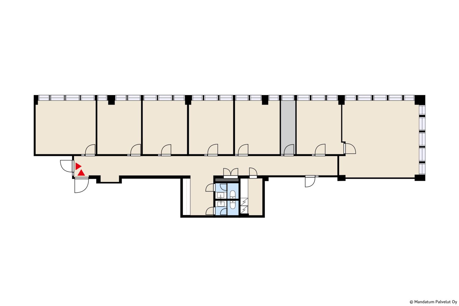
Vuokrataan 6. kerroksen valoisa toimitila. Kohteessa on kattavat palvelukokonaisuudet vuokralaisille. Valitse vihreämpi ympäristö yrityksellesi Ahti Business Parkista. Yrityspuiston valttikortti on hyvä sijainti Länsiväylän vieressä, vain 15 minuutin päässä Helsingistä. Tervetuloa tutustumaan!
Osoite
Ahventie 4, 02170 Espoo
Tilatyyppi
Toimistotilaa
193 m2
Kiinteistö
Ahti Business Park
Pysäköinti
Kiinteistön vuokralaisille on tarjolla runsaasti vuokrattavia pysäköintipaikkoja sekä ulkokannella että autohallissa. Vierailijoilla on mahdollisuus pysäköidä autonsa maksuttomasti ulkokannelle ilmoittaessaan autonsa rekisterinumeron Ahdin aulapalveluun.
Palvelut
Lounasravintola, vuokrattavia neuvottelutiloja, aulapalvelu
Muuta
Tilan ominaisuudet:
Vapautuu
Heti vapaa
Kerros
6.
Energiatehokkuusluokka
C
Ota yhteyttä
Mandatum Asset Management Palvelut Oy
Bulevardi 56, 00120 Helsinki
Näytä puhelinnumero
020 031 100
Tapio Reponen
Näytä puhelinnumero
0400 468 468
Pyydä lisätietoa
