Vuokrataan toimistotilat - Helsinki
Kaarlenkatu 9-11, Kallio, 00530 Helsinki #10787933
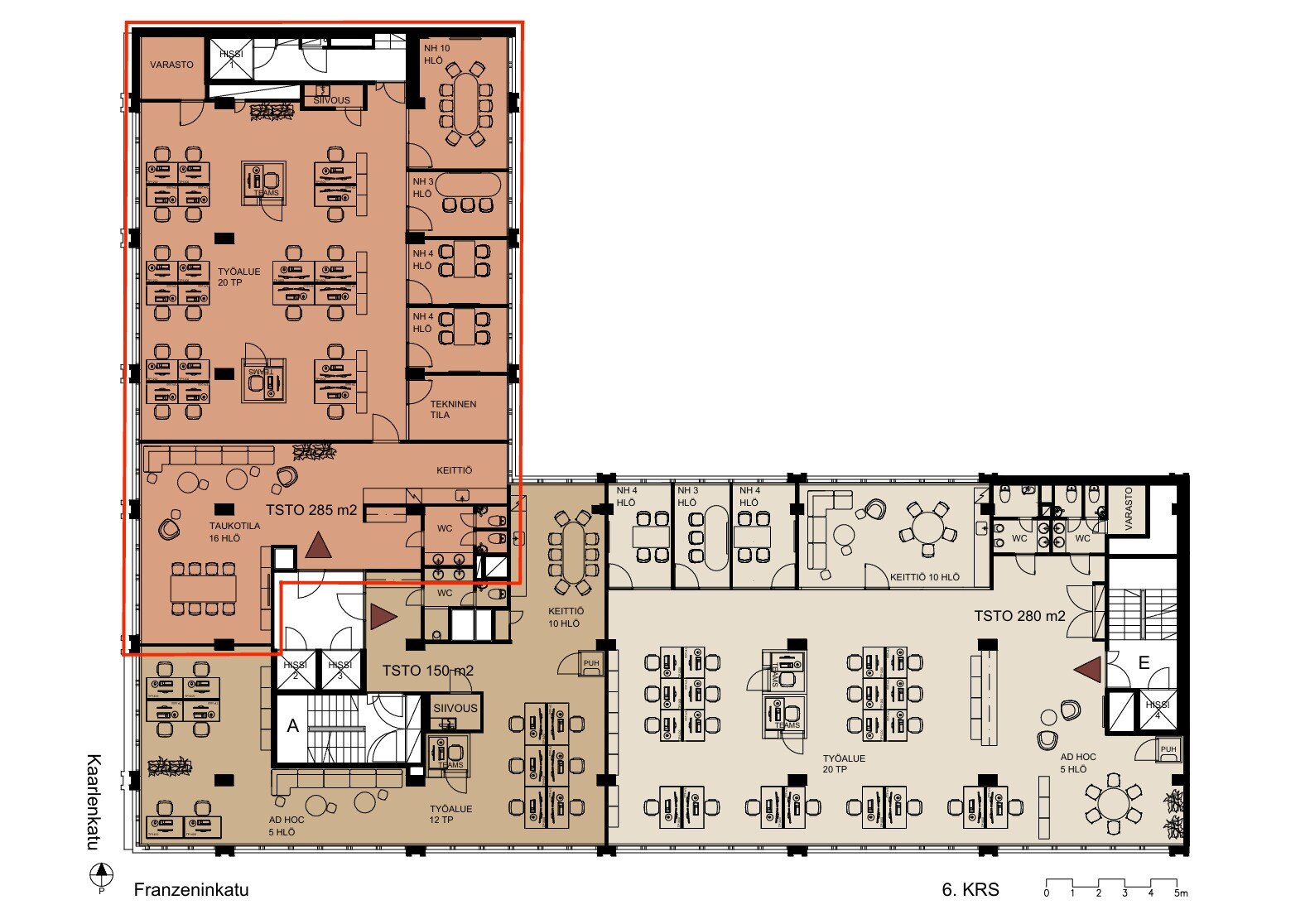
Monipuolinen toimistotila kuudennessa kerroksessa. Tässä tilassa on sekä avokonttoria että huoneita. Taukotila keittiöineen sekä toimiston sisääntulo on erotettu seinällä työskentelytiloissa, joten töitä saa tehdä rauhallisessa ympäristössä. Tilassa on omat wc:t.
Kaarlenkatu 9 - K9 - tarjoaa elämyksellisiä toimitiloja ja vaivattoman palvelukokonaisuuden. Sen sijainti Kaarlenkadulla keskellä Kallion kaupunginosaa tarjoaa näppärät yhteydet julkisilla kulkuneuvoilla sekä kävellen. Kiinteistöstä löytyy täyden palvelun toimisto- ja työtilojen lisäksi aulapalvelu, tapahtumatila, viihtyisä saunamaailma sekä monipuolinen kuntosali. Tyylikäs lounasravintola ja suojaisella sisäpihalla sijaitseva terassipatio luovat ainutlaatuista tunnelmaa ja elämää.
Croisette on uusi ja innovatiivinen toimitilojen välitysyritys Suomessa. Meillä on vahva halu auttaa teitä löytämään paras toimitilaratkaisu mahdollisimman vaivattomasti.
Huomaathan, että kaikki vapaat ja vapautuvat tilat ovat kauttamme saatavilla. Osa tiloista on hiljaisessa markkinoinnissa, mutta ottamalla meihin yhteyttä saat nekin tietoosi.
Palvelumme on tilanhakijoille täysin maksutonta.
Hissi
Croisette Real Estate Partner
Erottajankatu 5 A 6, 00130 Helsinki
Näytä puhelinnumero
+358 400 585 857
Croisette Vuokraus
Näytä puhelinnumero
+358400585857
