Vuokrataan toimistotilat - Helsinki
Tynnyrintekijänkatu 1, Kalasatama, 00580 Helsinki #10787884
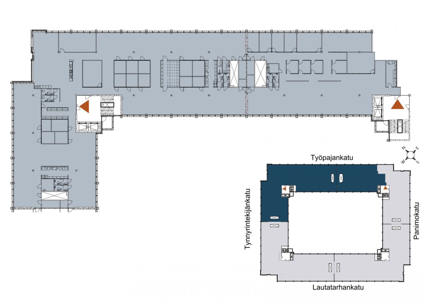
5. kerroksen tilat yhdistettynä.
Trooli on moderni toimistokiinteistökortteli, joka sijaitsee loistavalla sijainnilla Kalasatamassa, metroaseman kyljessä. Trooli-korttelin kiinteistöjen keskellä viihtyisä sisäpiha.
Nykyaikaiset tilat ovat korkealaatuiset ja muuntojoustavat. Troolissa on vuokrattavia neuvottelutiloja, kuntosali, lounasravintola, autohalli, pyöräparkki ja liikuntatilat. Autohallissa autonpesupaikka. Lisäksi kellarikerroksesta vuokrattavissa varastotilaa n. 400 m2.
Lisätiedot kohteesta: 020 7290 710, sekä lisää kohteita osoitteesta: premises.fi
Energialuokka C2018.Kerros: 5
CRE PREMISES
Puh. Näytä puhelinnumero 020 7290 710
Vantaankoskentie 14
01670 VANTAA
