Vuokrataan toimistotilat - Jyväskylä
Kilpisenkatu 1, 40100 Jyväskylä #10787842
Vuokrataan remontoitu katutason toimisto-, asiakaspalvelutila Tietotalosta.
Osoite
Kilpisenkatu 1, 40100 Jyväskylä
Tilatyyppi
Toimistotilaa
375 m2
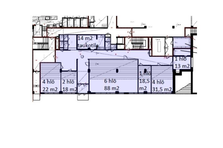
Pohjapiirros
Vuokra
Pyydä lisätiedot
Kiinteistö
Tilaan oma esteetön sisäänkäynti Kilpisenkadulta. Tila koostuu kuudesta erikokoisesta toimistohuoneesta, keittiö- / taukotilasta ja kolmesta wc:stä.
Tilojen ikkunat Kilpisenkadun puolelle. Pohjakuvassa mainitut henkilömäärät on tämän hetkisen toimijan työntekijämäärät per huone.
Kiinteistössä Sodexon ruokala. Kiinteistössä erikseen vuokrattavissa olevia kokoustiloja.
Tilojen ikkunat Kilpisenkadun puolelle. Pohjakuvassa mainitut henkilömäärät on tämän hetkisen toimijan työntekijämäärät per huone.
Kiinteistössä Sodexon ruokala. Kiinteistössä erikseen vuokrattavissa olevia kokoustiloja.
Pysäköinti
Autopaikkoja tarvittaessa Hannikaisenkadun eParking alueelta. Lähistölle valmistuu P-Paraati vuoden lopulla.
Näytöt ja lisätiedot: Henri Kumpulainen, Puh. 040 864 3631, s-posti: henri.kumpulainen@aveon.fi
Näytöt ja lisätiedot: Henri Kumpulainen, Puh. 040 864 3631, s-posti: henri.kumpulainen@aveon.fi
Vapautuu
Sopimuksen mukaan
Energiatehokkuusluokka
Ei lain edellyttämää energiatodistusta
Ota yhteyttä
Aveon Real Estate Oy
Kauppakatu 18 C 26, 40100 Jyväskylä
Henri Kumpulainen
Puh.
Näytä puhelinnumero
040 864 3631
henri.kumpulainen@aveon.fi
Olemme kiinteistöliiketoiminnan asiantuntija, joka toimii yrittäjämäisesti neuvonantajana kiinteistökaupoissa, toimitilavälittämisessä sekä kiinteistökehityksessä.
Asiakkaitamme ovat kotimaiset ja ulkomaiset kiinteistönomistajat, -sijoittajat sekä tilojen käyttäjät kaikkialla Suomessa.
Pyydä lisätietoa
