Vuokrataan toimistotilat - Helsinki
Kaisaniemenkatu 1, Kaisaniemi, 00100 Helsinki #10787809
Huippusijainnilla toimistotilaa Helsingin Kaisaniemessä
Osoite
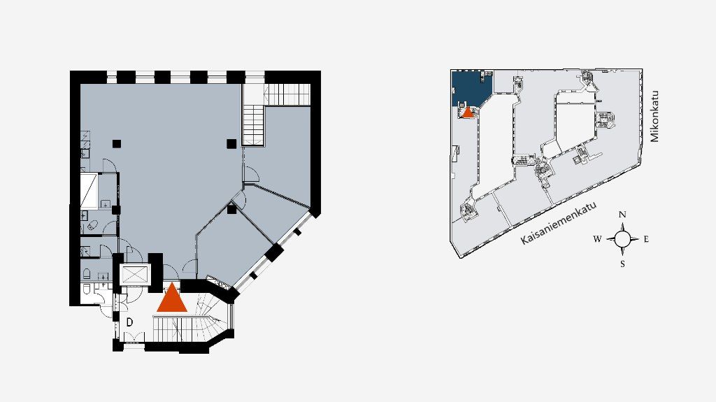
Kaisaniemenkatu 1, 00100 Helsinki
Tilatyyppi
Toimistotilaa
142 m2
Muuta
Vuokrataan erinomaisella sijainnilla toimistotilaa Kaisaniemestä, vuokrattava tila on 2. kerroksen 142 m² toimistotila.
Kiinteistö Kaisaniemenkatu 1 sijainti on erinomainen aivan Helsingin keskustan ytimessä. Julkisen liikenteen palvelut ovat välittömästi kohteen vieressä: Päärautatieasema, Metro ovat vain 300m/5min kävelymatkan päässä. Oman auton käyttäjiä palvelee lukuisat maksulliset pysäköintihallit. Myös lukuisat ravintolat ja lähikauppojen, kauppakeskusten palvelut ovat lyhyen kävelymatkan päässä.
Sisäkuvat ovat yleiskuvia Kaisaniemenkatu 1 kiinteistöstä
Tervetuloa tutustumaan, varaathan välittäjältä oman esittelyaikasi. Voit kysyä meiltä myös muita sopivia vaihtoehtoja, kauttamme löydät juuri teidän tarpeisiinne sopivat tilat. Palvelumme on tilanhakijalle veloitukseton!
Kiinteistö Kaisaniemenkatu 1 sijainti on erinomainen aivan Helsingin keskustan ytimessä. Julkisen liikenteen palvelut ovat välittömästi kohteen vieressä: Päärautatieasema, Metro ovat vain 300m/5min kävelymatkan päässä. Oman auton käyttäjiä palvelee lukuisat maksulliset pysäköintihallit. Myös lukuisat ravintolat ja lähikauppojen, kauppakeskusten palvelut ovat lyhyen kävelymatkan päässä.
Sisäkuvat ovat yleiskuvia Kaisaniemenkatu 1 kiinteistöstä
Tervetuloa tutustumaan, varaathan välittäjältä oman esittelyaikasi. Voit kysyä meiltä myös muita sopivia vaihtoehtoja, kauttamme löydät juuri teidän tarpeisiinne sopivat tilat. Palvelumme on tilanhakijalle veloitukseton!
Vapautuu
Kysy
Kerros
2
Ota yhteyttä
Tuloskiinteistöt Oy
Rikhardinkatu 2 B 5, 00130 Helsinki
Näytä puhelinnumero
(09) 6841 620
Jorma Ryynänen
Commercial Real Estate Advisor LKV, LVV
Näytä puhelinnumero
+358 40 708 4064
Otto Ahtola
Commercial Real Estate Advisor
Näytä puhelinnumero
+358 40 042 2830
Pyydä lisätietoa
