Vuokrataan toimistotilat - Siilinjärvi
Kapteeninväylä 5, Toivala, 70900 Siilinjärvi #10787577
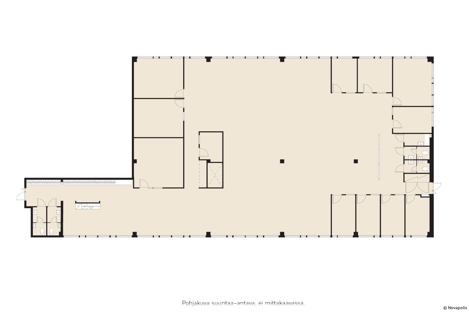
Vuokrataan 583 m² muuntojoustava, avara ja valoisa tilakokonaisuus strategisesti hyvän sijainnin varrelta Siilinjärven Toivalassa.
Nykypäivän työskentelyn mahdollistava tila on tällä hetkellä pääasiassa avotoimistoa, jossa on muutama työhuone sekä neuvottelutila. Tilakokonaisuudessa on myös minikeittiö / taukotila sekä omat WC-tilat. Tila voidaan muunnella ja räätälöidä yrityksesi tarpeisiin sopivaksi.
Tilan välittömässä läheisyydessä palvelee aulapalvelu sekä lounasravintola. Eri kokoisia kokoustiloja on vuokrattavissa monenlaisiin kokoustarpeisiin.
Erinomainen sijainti on Valtatie 9:n varrella, vain 4 km päässä Valtatie 5:stä. Kuopion lentokenttä toimii aivan vieressä. Kuopion keskustaan ajaa moottoritietä pitkin 15 minuutissa. Kiinteistölle on erinomaiset kulkuyhteydet autolla. Vuokrattavia pysäköintipaikkoja on piha-alueella reilusti ja lyhytaikaiseen pysäköintiin löytyy maksuttomia vieraspaikkoja aivan pääoven tuntumasta.
Mikäli kohde kiinnostaa teitä, ota yhteyttä ja tule tutustumaan Novapoliksen tiloihin!
Tutustu Novapolikseen: https://youtu.be/OLjEOn-3IfI
Meillä on myös laaja kirjo erilaisia ja eri kokoisia tiloja, jotka eivät kaikki välttämättä näy vapaiden toimitilojen haussa tai jokin tila on vasta vapautumassa. Myyntitiimimme etsii yhdessä kanssanne tarpeisiinne sopivan tilaratkaisun!
Novapolis
Viestikatu 7, 70600 Kuopio
Näytä puhelinnumero
040 718 9415
Veli-Pekka Ronkainen
Näytä puhelinnumero
040 128 2818
Henri Kuronen
Näytä puhelinnumero
044 033 1293
