Myydään liiketilat - Pomarkku
Vanhatie 1, Keskusta, 29630 Pomarkku #10787467
Perinteikäs huoltamokiinteistö Pomarkussa etsii uutta omistajaa!
Ryhdikäs elementtirakenteinen rakennus sijaitsee keskeisellä paikalla, Vanhatien alussa, lähellä Porintietä.
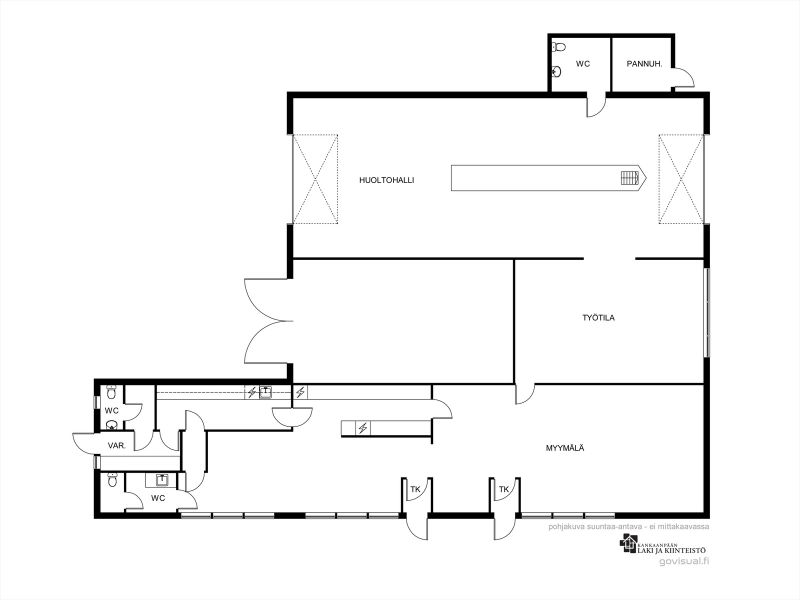
Rakennuksessa myymälä-/kahvilatila, kaksi korjaamotilaa, pesuhalli sekä katostilaa. Toimiva kiinteistö nykyiseen käyttötarkoitukseen tai muuhun käyttöön jalostettavaksi. Edulliset ylläpitokustannukset. Pihalla kolme jakajaa, viisi tankkauspistettä. Tontti 4400 neliötä, joka suurelta osin asfaltoitu. Tule tutustumaan ja ryhdy yrittäjäksi!
Myymälätila: kahvio, keittiö, 2 wc = noin 115m2.
1 korjaamotila, noin 50m2, korkeus noin 3,2m.
2 korjaamotila, noin 90m2, korkeus noin 5m .
Pesuhalli = 40m2.
Katos = 100m2.
Pihassa 5 tankkauspistettä/3 jakajaa.

Kankaanpään Laki ja Kiinteistö Oy
Keskuskatu 61
38700 KANKAANPÄÄ
Näytä puhelinnumero
+35825788991
Tuori Juhani
kiinteistönvälittäjä, kaupanvahvistaja
Näytä puhelinnumero
044-553 0215