Vuokrataan toimistotilat - Helsinki
Esterinportti 2, Pasila, 00240 Helsinki #10786870
Toimistotilaa hyvällä paikalla Helsingin Pasilassa.
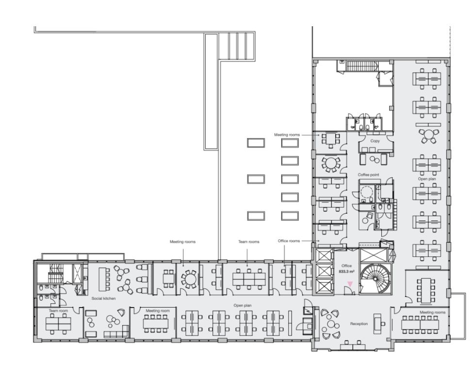
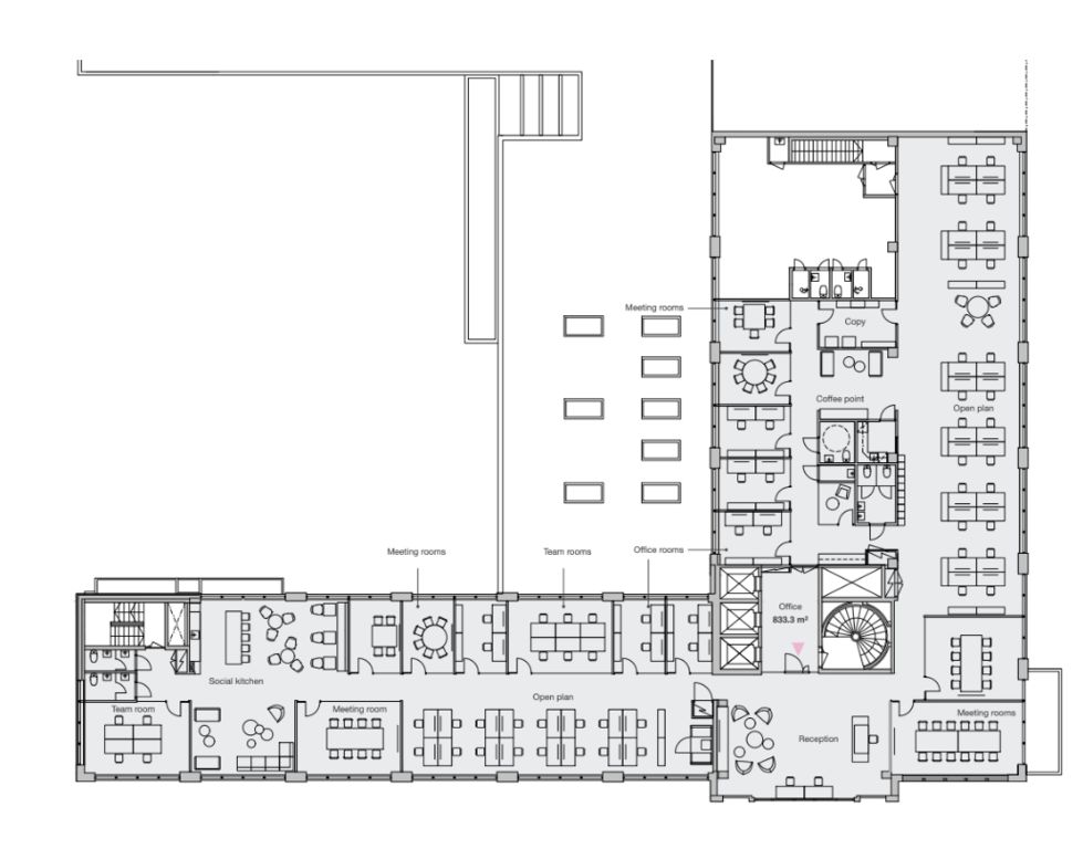
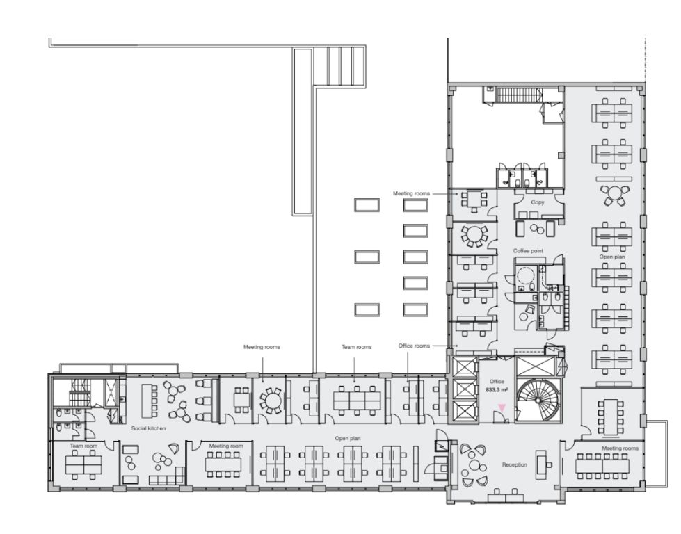
Tämä 912 m² toimistotila sijaitsee kiinteistön 2. kerroksessa. Toimistosta onnäkymät suoraan kauppakeskus Triplan suuntaan. Toimistossa on avotilaa, hyvänkokoisia tiimi- ja neuvotteluhuoneita sekä pienempiä työhuoneita. Toimistoa on mahdollista muunnella vuokralaisen tarpeiden mukaan. Kuvat ovat yleiskuvia kiinteistön tiloista.
Esterinportti 2 on toimistokiinteistö, joka sijaitsee Länsi-Pasilassa vain kivenheiton päässä kauppakeskus Triplasta. Kiinteistössä on tasokas lounasravintola Factory. Julkiset liikenneyhteydet ovat erinomaiset.
Kysy lisää numerosta 044 723 4700 tai info@bref.fi. Palvelumme on tilanhakijoille ilmainen.
Hissi
Bureau Real Estate Finland Oy
Lars Sonckin kaari 16, 02600 Espoo
Näytä puhelinnumero
0447234700
Bureau Real Estate Finland Oy
https://www.bref.fi