Vuokrataan toimistotilat - Helsinki
Malminkatu 28, Kamppi, 00100 Helsinki #10786755
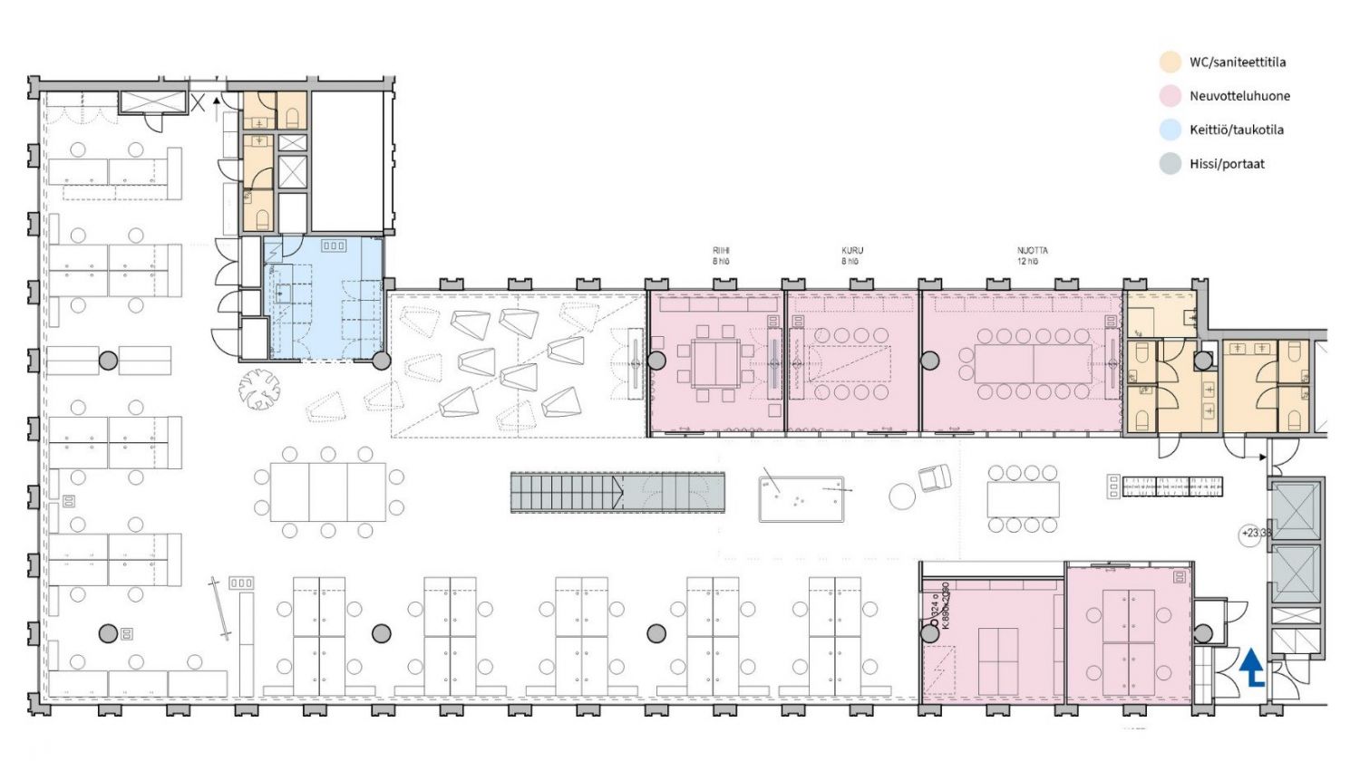
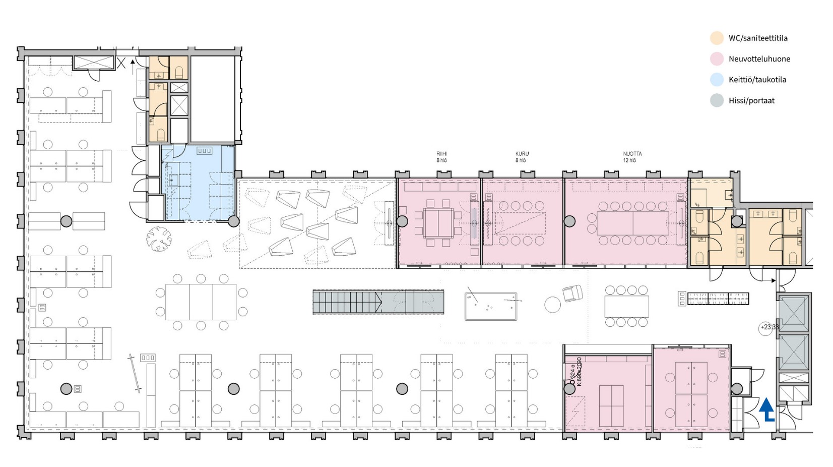
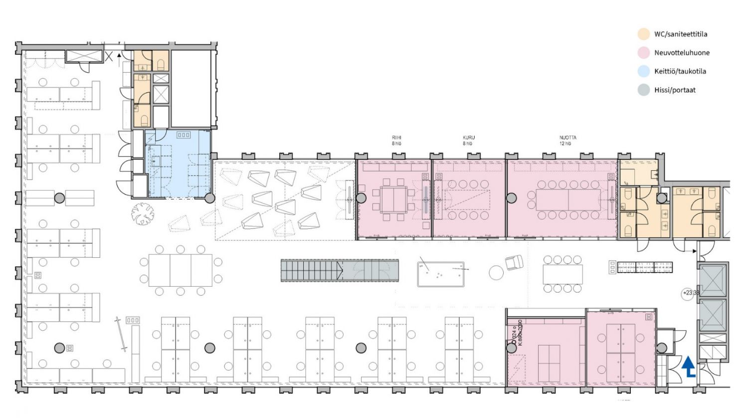
Valoisa toimistotila läpitalon ikkunoilla. Tässä tehokkaassa toimistossa on runsaasti avokonttoria, jossa kommunikointi on helppoa. Työtiloja täydentävät erikokoiset neuvottelutilat, joissa on helppo työskennellä oman tiimin kanssa. Toimistossa on oma taukohuone sekä wc-tilat.
Malminkatu 28 tarjoaa hiljattain remontoitua toimitilaa erinomaisella sijainnilla, aivan Kampin metroaseman ja kauppakeskuksen tuntumassa. Tämän vuonna 1977 valmistuneen rakennuksen julkisivu on patinoitunut kauniisti. Keskeinen sijainti suosii asiakastyötä tekeviä ja toimistolle saapuminenkin on vaivatonta erinomaisten julkisen liikenteen yhteyksien ansiosta.
Croisette on uusi ja innovatiivinen toimitilojen välitysyritys Suomessa. Meillä on vahva halu auttaa teitä löytämään paras toimitilaratkaisu mahdollisimman vaivattomasti.
Huomaathan, että kaikki vapaat ja vapautuvat tilat ovat kauttamme saatavilla. Osa tiloista on hiljaisessa markkinoinnissa, mutta ottamalla meihin yhteyttä saat nekin tietoosi.
Palvelumme on tilanhakijoille täysin maksutonta.
Hissi
Croisette Real Estate Partner
Erottajankatu 5 A 6, 00130 Helsinki
Näytä puhelinnumero
+358 400 585 857
Croisette Vuokraus
Näytä puhelinnumero
+358400585857
