Vuokrataan - Helsinki
Malminkatu 28, Kamppi, 00100 Helsinki #10786651
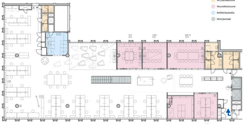
Vuokrattavana 3. kerroksen toimisto ( 525 m2) erinomaiselta sijainnilta Kampin ydimestä.
Erinomaiset julkiset liikkenneyhteydet ja monipuoliset palvelut kivenheiton päässä. Lyhyet etäisyydet metroasemalle ja Kampin keskukseen.
Osoite
Malminkatu 28, 00100 Helsinki
Vapautuu
Kysy
Huoneiden lukumäärä
1
Energiatehokkuusluokka
Ei lain edellyttämää energiatodistusta
Ota yhteyttä
RHG Real Estate
Hämeenkatu 2 B20, 20500 Turku
Näytä puhelinnumero
020 734 4020
Heli Reinberg
Näytä puhelinnumero
040 647 4900
Pyydä lisätietoa
