Vuokrataan toimistotilat, tuotantotilat - Helsinki
Särkiniementie 5, Lauttasaari, 00210 Helsinki #10786517
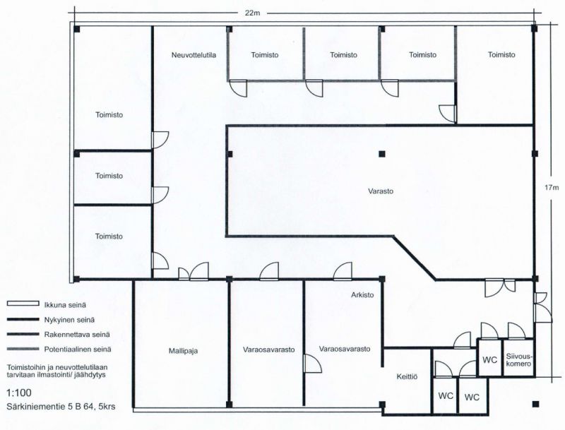
SÄRKINIEMENTIE 5 - toimisto-/tuotantotila 375m2m2
Tästä ylimmän, 5. kerroksen toimisto-/pientuotantotilasta on upeat MERINÄKÖALAT Tiiraluodon suuntaan.
Tila koostuu keskellä sijaitsevan avotilan lisäksi, erikokoisista toimistohuoneista, kevyeen tuotantoon tai varastointiin soveltuvista tiloista, neuvotteluhuoneesta, taukokeittiöstä, 3 wc-tilasta ja suihkusta.
Tilat on jäähdytetty ja helposti muokattavissa asiakkaan tarpeiden mukaisiksi!
Lisätiedot ja kohdenäytöt: p. 040 7070 321 / HeikkiKerros: 5
Osoite
Särkiniementie 5, 00210 Helsinki
Tilatyyppi
Toimistotilaa
375 m2
Tuotantotilaa
375 m2
Yhteensä
375 m2
Kulkuyhteydet
Metrolle: 1,4 km -
Bussit: 400 m (21/21N) -
Autolla: 1,6 km (Länsiväylä)
Bussit: 400 m (21/21N) -
Autolla: 1,6 km (Länsiväylä)
Ota yhteyttä
CRE PREMISES
Puh. Näytä puhelinnumero 020 7290 710
Vantaankoskentie 14
01670 VANTAA
Pyydä lisätietoa
