Vuokrataan tuotantotilat, varastotilat - Järvenpää
Satukukanpolku 5 B, Järvenpää #10786504
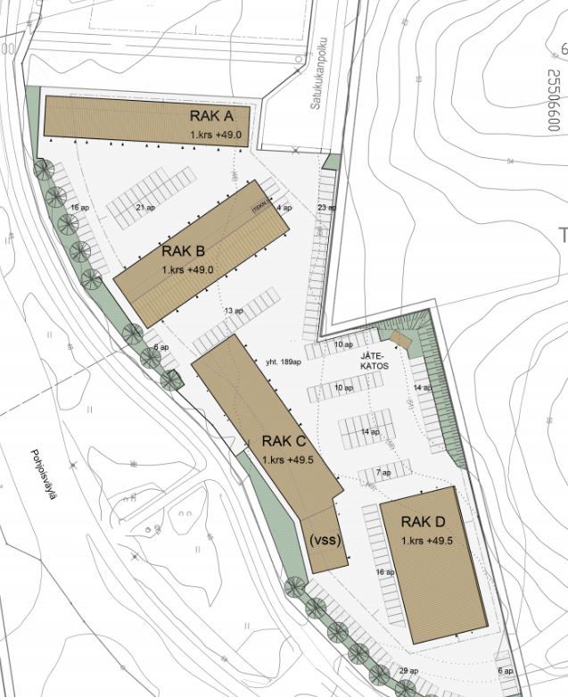
Vuokrataan monitoimitilaa Satukallion ja Kyrölän väliseltä alueelta, Järvenpään keskustan eteläpuolelta. B-Rakennuksessa vapaita työtiloja vielä useampi kappale, yksi moduuli on aina 80 m2. Tässä yhdistetty kaksi moduulia B02 ja B03, jolloin tila yht. 160 m2.
Tilan varustelu tehdään asiakkaalle sopivaksi. Perusvarusteluun kuuluu erillinen tauko- tai toimistotila, tilavalaistus, sähköt 16A 3-vaihepistorasialla ja valovirtapistokkeilla, vesipiste, wc suihkuvarauksella, lattiakaivo hiekan- ja öljynerottimella, sähkökäyttöinen nosto-ovi, koneellinen ilmanvaihto lämmöntalteenotolla ja pysäköintipaikat tontilla. Lisäksi on mahdollista saada mm. jäähdytys, kohdepoistot, pintamateriaalimuutoksia tai väliseinien poistoja.
Lisätietoa 020 7290 710 ja lisää kohteita premises.fi.
Energialuokka CKerros: 1
CRE PREMISES
Puh. Näytä puhelinnumero 020 7290 710
Vantaankoskentie 14
01670 VANTAA
