Vuokrataan toimistotilat, tuotantotilat - Helsinki
Särkiniementie 5, Lauttasaari, 00210 Helsinki #10786404
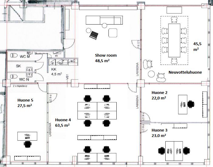
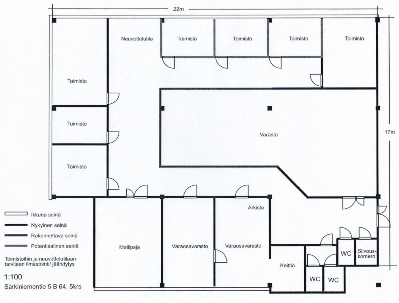
SÄRKINIEMENTIE 5 - toimisto-/tuotantotila 625m2
Tästä ylimmään, 5. kerroksen toimisto-/pientuotantotilasta on upeat MERINÄKÖALAt Tiiraluodon suuntaan.
Tila koostuu keskellä avotiloista, erikokoisista toimistohuoneista, kevyeen tuotantoon tai varastointiin soveltuvista tiloista, neuvotteluhuoneista, 2 keittöstä, 5 wc-tilasta ja 2 suihkusta.
Lasiseinät ja paljon ikkunapintaa kolmeen suuntaan tekevät tiloista erittäin valoisat.
Tilat helposti muokattavissa asiakkaan tarpeiden mukaisiksi!
Lisätiedot ja kohdenäytöt: p. 040 7070 321 / HeikkiKerros: 5
Osoite
Särkiniementie 5, 00210 Helsinki
Tilatyyppi
Toimistotilaa
250 - 625 m2
Tuotantotilaa
250 - 625 m2
Yhteensä
250 - 625 m2
Kulkuyhteydet
Metrolle: 1,4 km -
Bussit: 400 m (21/21N) -
Autolla: 1,6 km (Länsiväylä)
Bussit: 400 m (21/21N) -
Autolla: 1,6 km (Länsiväylä)
Ota yhteyttä
CRE PREMISES
Puh. Näytä puhelinnumero 020 7290 710
Vantaankoskentie 14
01670 VANTAA
Pyydä lisätietoa
