Vuokrataan toimistotilat, näyttelytilat - Helsinki
Särkiniementie 5, Lauttasaari, 00210 Helsinki #10786299
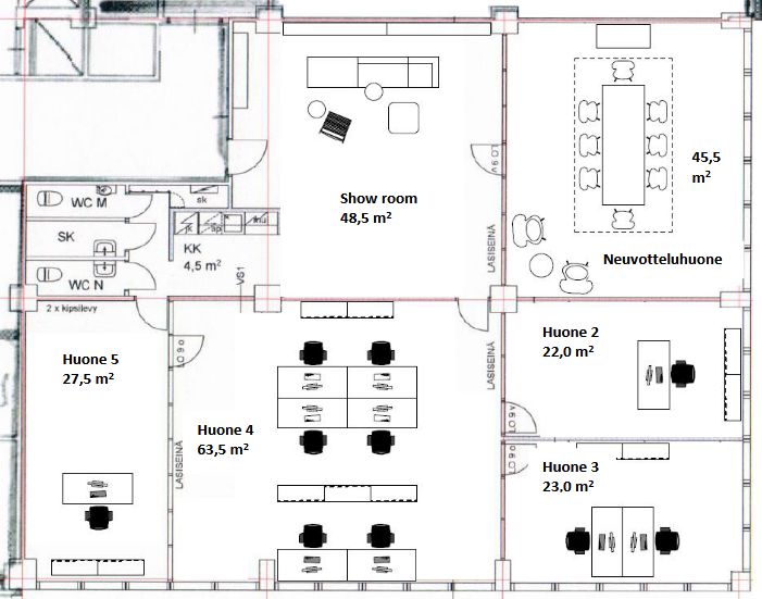
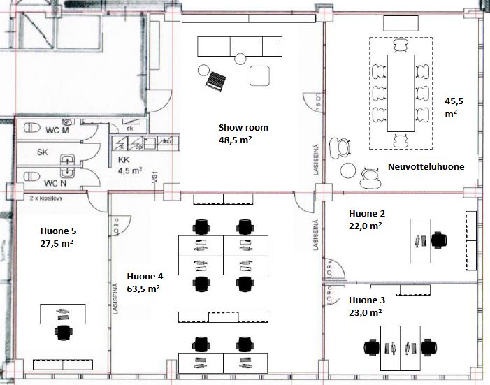
SÄRKINIEMENTIE 5 - toimisto/showroom 250m2
Hieno ylimmän 5. kerroksen industrial-henkinen toimisto-/näyttelytila upealla MERINÄKÖALALLA!
Kokonaisuudessa 2 isompaa avotilaa, 3 toimistotilaa, neuvotteluhuone, keittiö, 2 wc-tilaa ja suihku.
Erittäin valoisa tila, jossa huonekohtainen jäähdyttävä ilmastointi, paljon lasipintaa ja lakattu betonilattia.
Lisätiedot ja kohdenäytöt: p. 040 7070 321 / HeikkiKerros: 5
Osoite
Särkiniementie 5, 00210 Helsinki
Tilatyyppi
Toimistotilaa
250 m2
Näyttelytilaa
250 m2
Yhteensä
250 m2
Kulkuyhteydet
Metrolle: 1,4 km -
Bussit: 400 m (21/21N) -
Autolla: 1,6 km (Länsiväylä)
Bussit: 400 m (21/21N) -
Autolla: 1,6 km (Länsiväylä)
Ota yhteyttä
CRE PREMISES
Puh. Näytä puhelinnumero 020 7290 710
Vantaankoskentie 14
01670 VANTAA
Pyydä lisätietoa
