Vuokrataan toimistotilat, tuotantotilat, varastotilat - Espoo
Koskelontie 13, Koskelo, 02920 Espoo #10786206
Espoon Koskelossa sijaitseva Koskelontie 13 on yhden – tai kolmenkin – käyttäjän logistiikkakiinteistö, jonka keskeinen sijainti Kehä III:n välittömässä läheisyydessä takaa sujuvat yhteydet kaikille pääväylille.
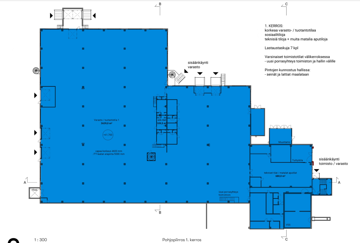
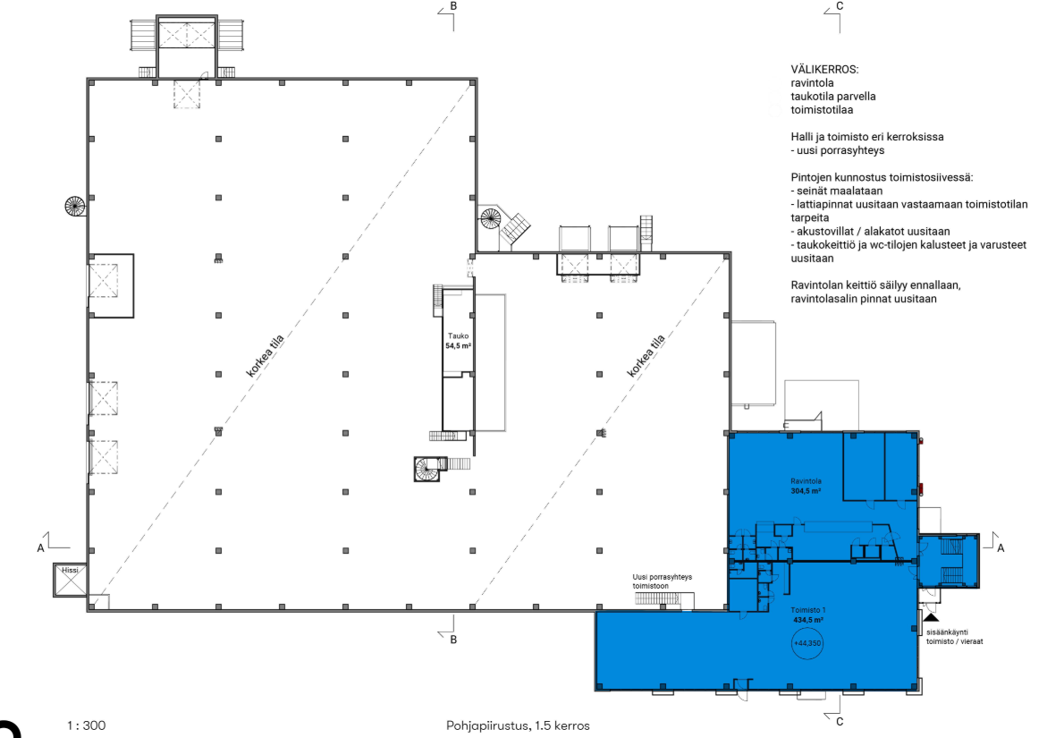
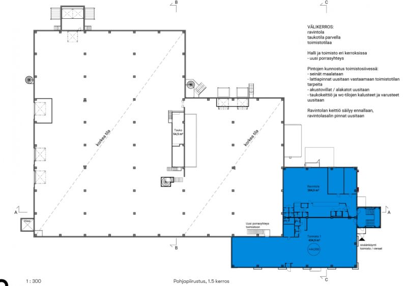
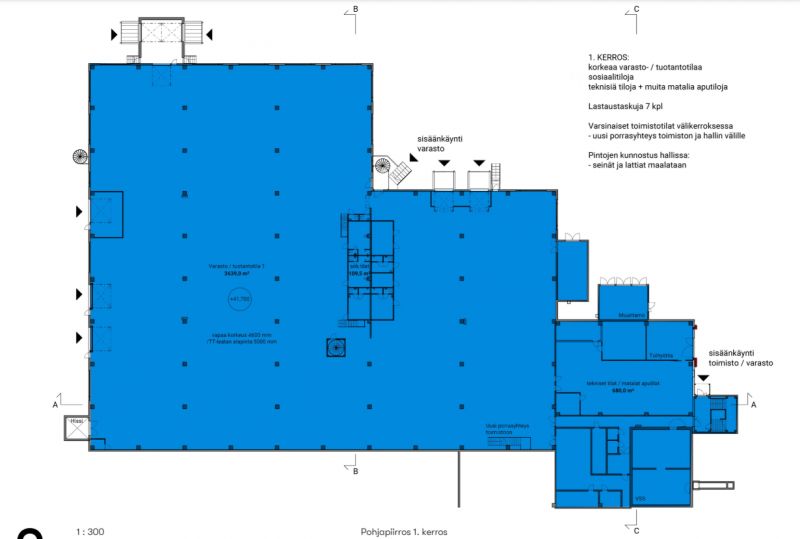
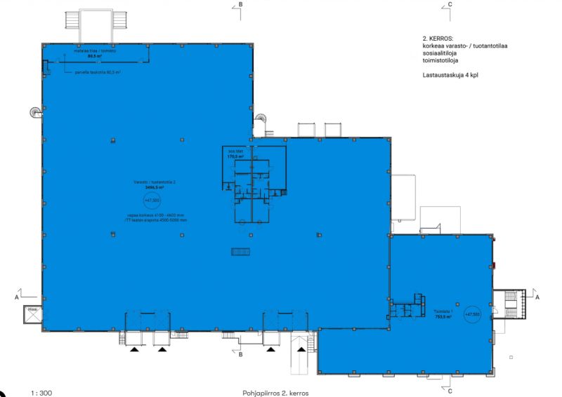
Kiinteistöstä on mahdollista saada nyt tuotanto- ja varastotilaa, joissa maantason lastausmahdollisuus sekä useampi lastaustasku, sekä toimistotilat saman katon alta. Kiinteistössä on myös ravintolatilaa.
Tilat ovat remontoitavissa käyttäjien toiveiden mukaisesti. Tiloissa on lastauramppi sekä useita lastaustaskuja nosto-ovilla, lattiakantavuus 2000 kg/m2.Tilat ovat räätälöitävissä uuden käyttäjän tarpeisiin sopiviksi. Ota yhteyttä ja sovi esittely, vuokrauspalvelumme on tilanhakijoille maksuton.
Näkyvällä paikalla
Senaatin Notariaatti Oy LKV
Lämmittäjänkatu 4 A
FIN-00880 Helsinki
Tel:
Näytä puhelinnumero
+358 9 7745 100
