Vuokrataan varastotilat - Espoo
Koskelontie 21-25, Koskelo, 02920 Espoo #10786204
Läpiajettavaa, maantason lämmintä varastotilaa 6:lla nosto-ovella, vapaa korkeus 6 metriä. Talosta saatavilla tarvittaessa myös toimistotilaa 160 m2 - 840 m2. Ota yhteyttä ja sovi esittely, vuokrauspalvelumme on tilanhakijoille maksuton. Puh. 09 7745 100.
Osoite
Koskelontie 21-25, 02920 Espoo
Tilatyyppi
Varastotilaa
3005 m2
Tilajako
Jaettavissa
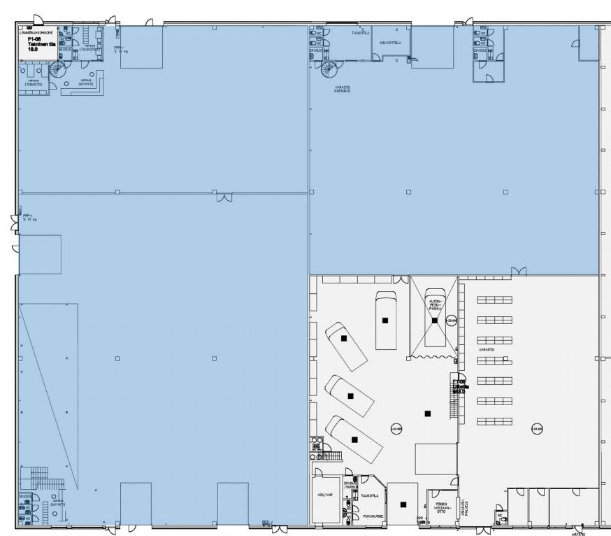
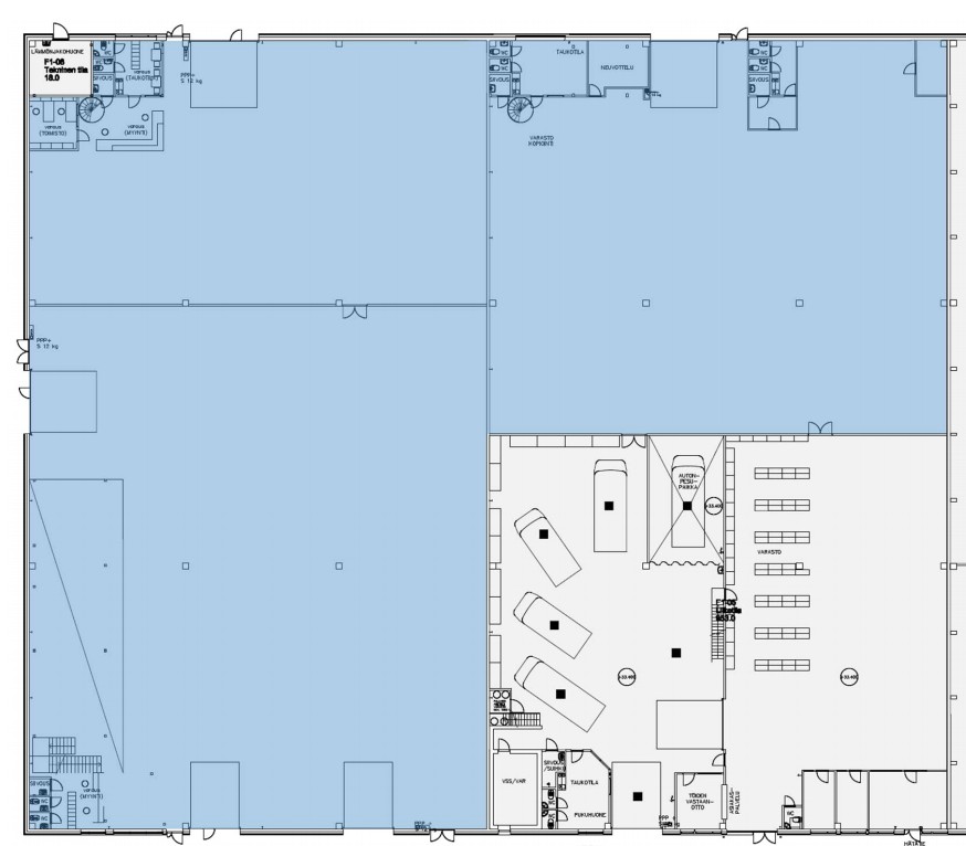
Pohjapiirros
Kiinteistö
Koskelo Trade Park on logistiikkakiinteistö loistavalla sijainnilla Espoon Koskelossa. Kiinteistöstä mahdollista saada toimisto- ja varastotilat saman katon alta.
Sijainti
Loistava sijainti Espoon Koskelossa Kehä III:n välittömässä läheisyydessä, josta yhteydet kaikille pääväylille sekä mm. Helsinki-Vantaan lentoasemalle ja Vuosaaren satamaan.
Pysäköinti
Pihalla runsaasti pysäköintitilaa.
Kulkuyhteydet
Kehä III
Muuta
Huom! - kohdekuvat eivät välttämättä edusta juuri kyseistä tilaa.
Vapautuu
Heti
Katutasossa
Näkyvällä paikalla
Jaettavissa
Ota yhteyttä
Senaatin Notariaatti Oy LKV
Lämmittäjänkatu 4 A
FIN-00880 Helsinki
Tel:
Näytä puhelinnumero
+358 9 7745 100
Pyydä lisätietoa
