Vuokrataan tuotantotilat - Tuusula
Majavantie 10, Riihikallio, 04320 Tuusula #10786137
Modernia monitoimitilaa Tuusulassa.
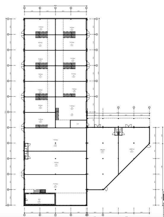
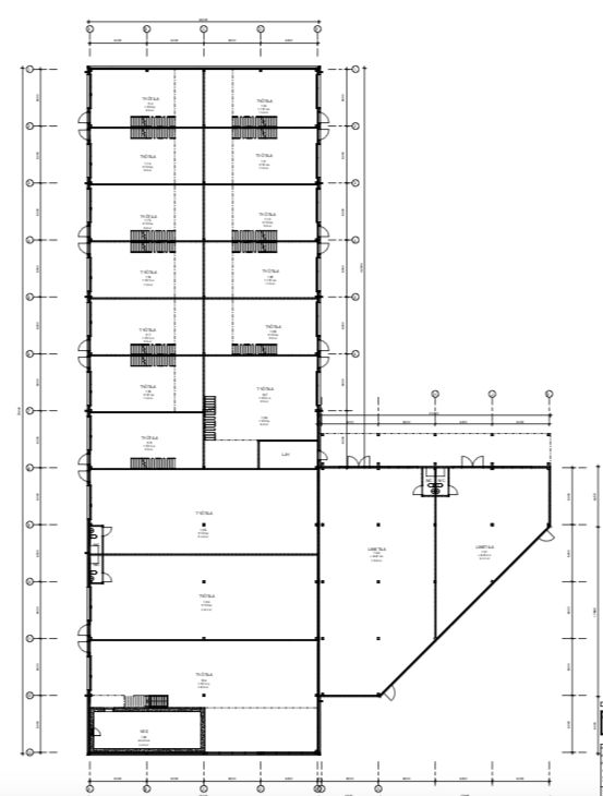
Majavantien kohteiden perusyksikkö on kooltaan 90,5m2. Se koostuu 72m2 varasto-/tuotantotilasta sekä 18,5m2 parvitilasta, jossa omat sosiaalitilat. Jokaisen yksikön perusvarusteluihin kuuluu erillinen toimisto- ja taukotila, valaistus, sähköt 16A 3-vaihepistorasialla ja valovirtapistokkeilla, vesipiste, wc-tila suihkuvarauksella, lattiakaivo hiekan- ja öljynerottimella, sähkökäyttöinen nosto-ovi, koneellinen ilmanvaihto lämmöntalteenotolla ja pysäköintipaikat tontilla. Tilassa on myös nosto-ovi.
Monitoimitilaa on yhteensä noin 2498 m2. Kiinteistön tilat on suunniteltu joustaviksi niin, että yksiköitä on helppo muunnella, jakaa ja yhdistellä. Niiden pohja- ja LVI-ratkaisut mahdollistavat muokattavuuden eri toimialojen käyttäjien tarpeisiin, esimerkiksi tilat voivat toimia tuotanto-, varasto- ja näyttelytiloina.
Majavantie 10 on monitoimitila-kiinteistö, joka valmistui keväällä 2020. Se sijaitsee Tuusulan Riihikalliossa, Tuusulanväylän vieressä.
Kysy lisää numerosta 044 723 4700 tai info@bref.fi. Palvelumme on tilanhakijoille ilmainen.
Bureau Real Estate Finland Oy
Lars Sonckin kaari 16, 02600 Espoo
Näytä puhelinnumero
0447234700
Bureau Real Estate Finland Oy
https://www.bref.fi