Vuokrataan toimistotilat - Jyväskylä
Ylistönmäentie 33, 40500 Jyväskylä #10785968
Nyt tarjolla yrityksesi tarpeeseen muokattavat toimistotilat suositulta alueelta Ylistönmäeltä kuudennen kerroksen upeilla näköaloilla. Saat käyttöösi myös yhteiskäytössä olevat kokoustilat, saunatilat ja kuntosalin.
Kuusikerroksisessa toimistorakennuksessa on toimistotilaa yhteensä yli 4 400 neliötä. Rakennus on alunperinkin suunniteltu yrityskäyttöön ja 90-luvulla valmistuneet tilat on viime vuosina remontoitu taloteknisesti entistä nykyaikaisemmaksi ja toimivammaksi.
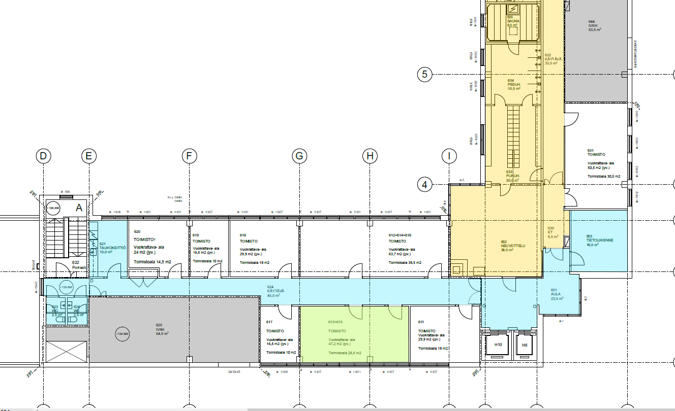
Nyt vapaana on Ylistönmäki 33:sta kuudennesta kerroksesta modernia ja yrityksesi tarpeiden mukaan muokattavaa toimistotilaa.
Kerros sisältää kokonaisuudessaan n. 200 m2 (jyv.) tilakokonaisuuden, johon sisältyy myös käyttöoikeus yhteisiin tiloihin. Tilat sijaitsevat pientoimistokerroksessa, mikä mahdollistaa sen, että kerroksesta voi vuokrata erillisiä kompakteja toimistotiloja kokoluokassa 17 m2–64 m2.
Yhteiskäytössä olevat kokoustilat, saunatilat ja kuntosalin sekä alakerran ravintolan lounas- ja catering-palvelut.
Juna- ja linja-autoasema 3 km, linja-autopysäkki 100 m.
Täällä tilankäyttö on tehokasta etkä maksa turhista neliöistä, sillä oman tilasi vuokraan kuuluu yhteisten tilojen käyttö:
- aula- ja käytävätilat
- WC-tilat
- keittiö/kahvio
- sauna- ja kokoustilat 6. kerroksessa
- kuntosali ja suihkutilat.
Tiloja voimme muotoilla yrityksesi ja työntekijöidesi tarpeiden mukaan. Teemme muutostyöt valmiiksi ennen vuokrasopimuksesi alkua.
Tutustu nykyisten vuokralaisten kokemuksiin kohteesta täällä: https://konttorit.fi/kokemukset/jyvaskylan-ylistonmaen-toimitilat-vuokralaisten-kokemuksia/
Lue lisää kohteesta ja katso esittelyvideo: https://konttorit.fi/jyvaskylan-ylistonmaki/
Tule rohkeasti katsomaan tiloja ja mietitään yhdessä, miten saamme niistä täsmälleen yrityksesi tarpeita palvelevat. Ota yhteyttä ja kysy lisää!
Hissi
Samla Toimitilat
Elina Venäläinen
Asset Manager
Näytä puhelinnumero
050 557 3659
Hannikaisenkatu 39
40100 JYVÄSKYLÄ
Samla Capital on suomalainen kiinteistösijoittamiseen erikoistunut yhtiö, joka sijoittaa kasvukeskusten kiinteistöihin hallinnoimiensa rahastojen kautta. Rahastorakenne mahdollistaa sijoittamisen kiinteistöihin sekä ammattimaisille että ei-ammattimaisille sijoittajille. Yhtiön perusti vuonna 2015 yhdistetyn kolminkertainen Olympiavoittaja, KTM, Samppa Lajunen.
http://www.samlacapital.fi