Vuokrataan toimistotilat - Helsinki
Energiakatu 4, Ruoholahti, 00180 Helsinki #10785616
Pääkonttoritason toimitila merinäköaloin
Osoite
Energiakatu 4, 00180 Helsinki
Tilatyyppi
Toimistotilaa
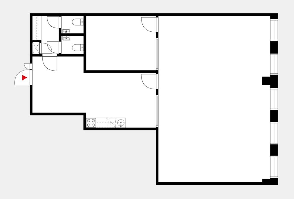
120 m2
Pysäköinti
Kyllä
Muuta
Vuokrataan kaunista ja avara toimistotila Helsingin Ruoholahdessa, vuokrattavana on 4. kerroksen 120m2 toimistotila. Technopolis Ruoholahti 3 sijainti on erinomainen länsiväylän alussa, hyvien julkisten joukkoliikennevälineiden varrella.
Technopolis Ruoholahti 3 toimintaympäristö takaa vuokralaisille erinomaiset ja modernit palvelut. Kiinteistössä on mm. aulapalvelu, ravintola, vuokrattavia neuvottelutiloja, auditorio, pitopalvelu, videokonfrenssijärjestelmä, toimitilojen suunnittelupalvelu, it-palvelut, siivous- ja toimitilapalvelut, muuttopalvelu ja vuokrattavia toimistokalusteita.
Tervetuloa tutustumaan, tämä täytyy nähdä paikan päällä. Järjestämme teille esittelyn joustavasti aikataulujenne mukaan.
Technopolis Ruoholahti 3 toimintaympäristö takaa vuokralaisille erinomaiset ja modernit palvelut. Kiinteistössä on mm. aulapalvelu, ravintola, vuokrattavia neuvottelutiloja, auditorio, pitopalvelu, videokonfrenssijärjestelmä, toimitilojen suunnittelupalvelu, it-palvelut, siivous- ja toimitilapalvelut, muuttopalvelu ja vuokrattavia toimistokalusteita.
Tervetuloa tutustumaan, tämä täytyy nähdä paikan päällä. Järjestämme teille esittelyn joustavasti aikataulujenne mukaan.
Vapautuu
Kysy
Rakennusvuosi
2012
Kerros
4
Ota yhteyttä
Tuloskiinteistöt Oy
Rikhardinkatu 2 B 5, 00130 Helsinki
Näytä puhelinnumero
(09) 6841 620
Nina Meyke
Commercial Real Estate Advisor
Näytä puhelinnumero
+358 50 466 1519
Jorma Ryynänen
Commercial Real Estate Advisor LKV, LVV
Näytä puhelinnumero
+358 40 708 4064
Pyydä lisätietoa
