Vuokrataan toimistotilat - Helsinki
Suolakivenkatu 1, Herttoniemi, 00810 Helsinki #10785587
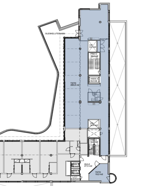
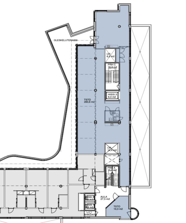
Laadukas ja monikäyttöinen 303 m² toimisto meren äärellä Herttoniemessä.
Osoite
Suolakivenkatu 1, 00810 Helsinki
Tilatyyppi
Toimistotilaa
303 m2
Pohjapiirros
Kiinteistö
Herttoniemenrannassa 5. krs valoisa ja muuntojoustava toimistotila. Tilasta on hienot merinäkymät, ja talossa on oma, lämmin parkkihalli.
Kiinteistössä on tällä hetkellä meneillään laaja, koko talon kattava saneeraus, jonka arvioitu valmistumisaika on kesällä 2024. Tilasuunnitelmiin on ennen valmistumista mahdollista vaikuttaa.
Toimistotilat Suolakivenkatu 1:ssa ovat helposti muokattavissa esimerkiksi lääkäriaseman tai kuntoutustoimeen soveltuviksi. Kiinteistöstä on vuokrattu tiloja esimerkiksi kuntosali- ja hoivatoimintaan.
Kiinteistössä on tällä hetkellä meneillään laaja, koko talon kattava saneeraus, jonka arvioitu valmistumisaika on kesällä 2024. Tilasuunnitelmiin on ennen valmistumista mahdollista vaikuttaa.
Toimistotilat Suolakivenkatu 1:ssa ovat helposti muokattavissa esimerkiksi lääkäriaseman tai kuntoutustoimeen soveltuviksi. Kiinteistöstä on vuokrattu tiloja esimerkiksi kuntosali- ja hoivatoimintaan.
Pysäköinti
Kiinteistössä autohalli
Kulkuyhteydet
Metroasema 500 m, Bussipysäkki alle 100 m, Juna-asema 5,9 km, Lentoasema 14,4 km
Vapautuu
Heti
Saneerausvuosi
2024
Kerros
5 / 6
Energiatehokkuusluokka
Ei lain edellyttämää energiatodistusta
Näkyvällä paikalla
Hissi
Ota yhteyttä
ScanReal Oy LKV
Opus Business Park
Hitsaajankatu 24
00810 Helsinki
info@scanreal.fi
Puh:
Näytä puhelinnumero
020 730 8830
Sopivat toimitilat yhdellä otolla!
Kartoitamme toimitilatarpeesi ja etsimme yrityksellesi parhaiten sopivat vapaat toimitilat. Koska vuokranantajat maksavat palvelumme, on tämä yrityksellesi veloituksetonta.
OTA YHTEYTTÄ - SOVI NÄYTTÖ!
Kaikki kohteemme eivät ole netissä, kerro tilatarpeesi niin kartoitamme vaihtoehdot.
Palvelumme on tilanhakijalle ilmainen
Pyydä lisätietoa
