Vuokrataan toimistotilat - Helsinki
Aku Korhosentie 8, Pohjois-Haaga, 00440 Helsinki #10785130
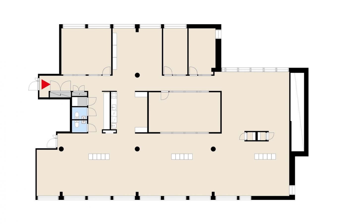
Vuokrattavana modernia, valoisaa toimistotilaa.
Osoite
Aku Korhosentie 8, 00440 Helsinki
Tilatyyppi
Toimistotilaa
377 m2
Kiinteistö
Vuokrattavana modernia, valoisaa toimistotilaa. Tila voidaan muuttaa tarpeiden mukaan joko avotilaksi, huonetoimistoksi tai näiden yhdistelmäksi.
Sijainti
Pohjois-Haaga, Helsinki
Pysäköinti
Parkkihalli, pihalla myös paikkoja
Palvelut
Ravintola ja lähialueen palvelut
Kulkuyhteydet
-Bussi
-Oma auto
-Oma auto
Vapautuu
Heti
Kerros
6
Energiatehokkuusluokka
Ei lain edellyttämää energiatodistusta
Näkyvällä paikalla
Hissi
Ota yhteyttä
REALIUM OY LKV
Tammasaarenkatu 1, 00180 Helsinki
Vaihde:
Näytä puhelinnumero
010 326 346
Tuomo Mäkelä
tuomo.makela@realium.fi
p.
Näytä puhelinnumero
044 050 1158
Joel Keto
joel.keto@realium.fi
p.
Näytä puhelinnumero
045 317 0330
KAIKKI TILAVAIHTOEHDOT KERRALLA!
SOITA - MEILAA JA TILAA NÄYTTÖ!
Ilmainen palvelu tilanhakijoille.
Kartoitamme parhaat tilavaihtoehdot.
Kaikki kohteet eivät ole netissä.
Pyydä lisätietoa
