Vuokrataan toimistotilat - Espoo
Kivenlahdenkatu 1, Kivenlahti, 02320 Espoo #10784698
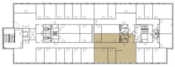
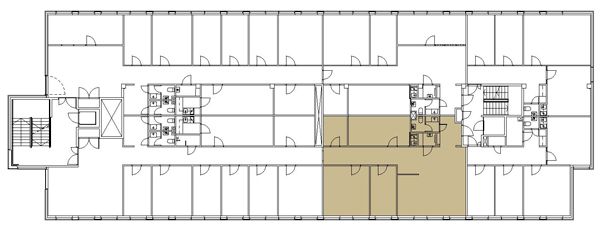
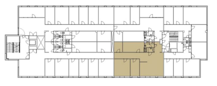
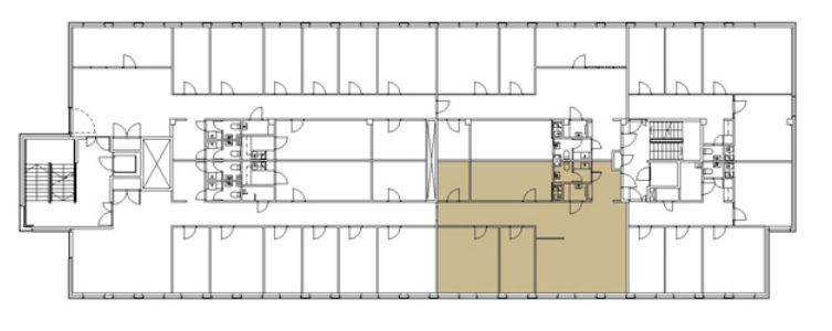
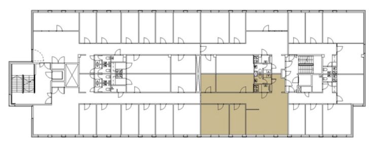
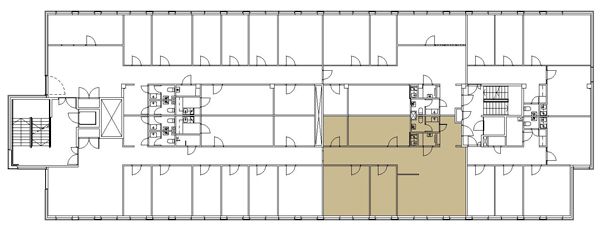
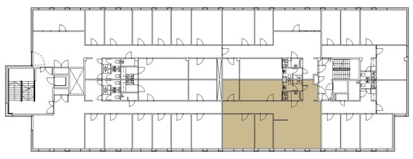
Vuokrattavissa 4. kerroksen 112 m2 toimistotila. Tilassa on oma wc sekä minikeittiö.
Vuonna 1992 rakennettu kiinteistö Oy Poijupuisto sijaitsee Espoon Kivenlahdessa aivan Länsiväylän varressa. Kiinteistölle on hyvä näkyvyys Länsiväylällä liikkuville. Talossa on jäähdytys ja toimistot ovat hyvässä kunnossa. Turvallisuutta lisää mm. kameravalvonta.
Kiinteistön pihassa on rajoitetusti vuokrattavia autopaikkoja sekä asiakaspaikkoja. Lisää parkkipaikkoja on kiinteistön lähettyvillä olevalla pysäköintialueella. Ensimmäisessä kerroksessa toimii päivittäistavarakauppa. Vuokrattavana toimistotilaa 112m2.
Lisätiedot 020 7290 716.
Kohteella ei ole lain edellyttämää energiatodistusta.Kerros: 4
CRE PREMISES
Puh. Näytä puhelinnumero 020 7290 710
Vantaankoskentie 14
01670 VANTAA
