Vuokrataan toimistotilat - Jyväskylä
Kivääritehtaankatu 6, 40100 Jyväskylä #10784608
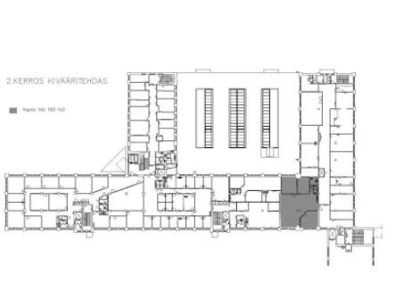
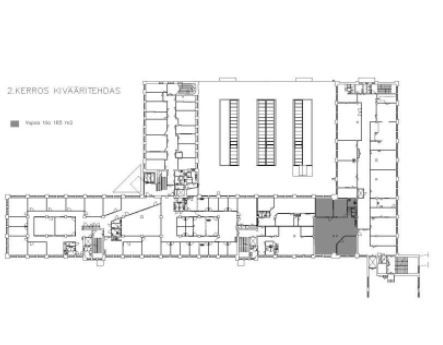
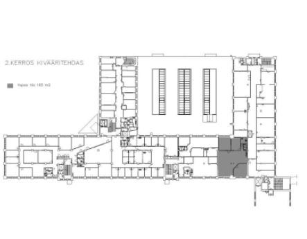
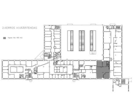
Tourulassa, keskustan tuntumassa, perinteisessä Tourulan Kivääritehtaalla vuokrattavana erikokoista toimistotilaa.
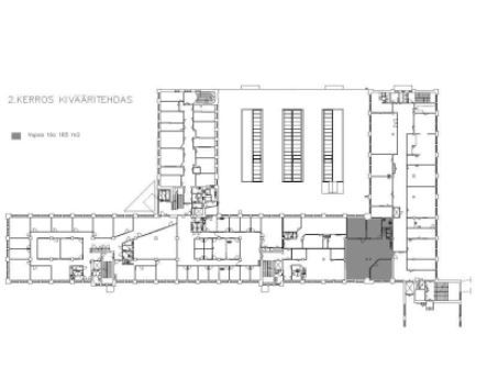
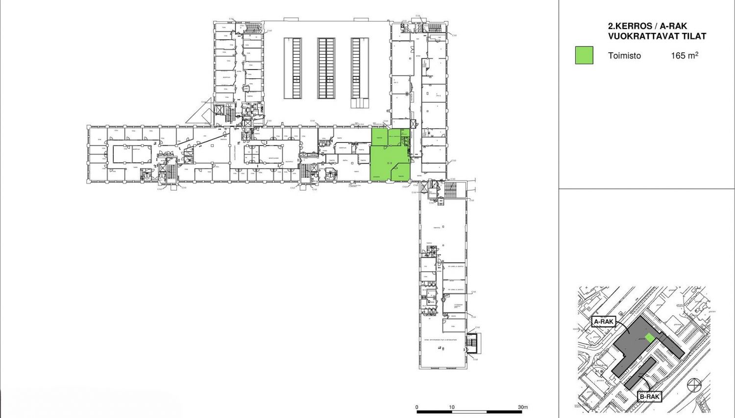
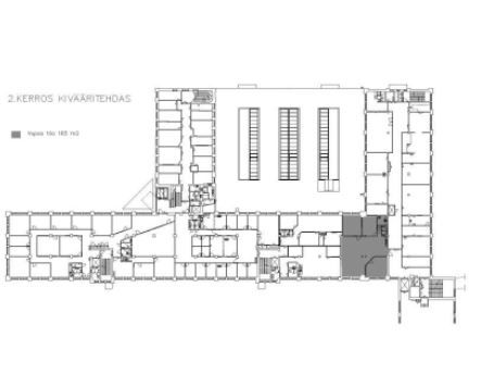
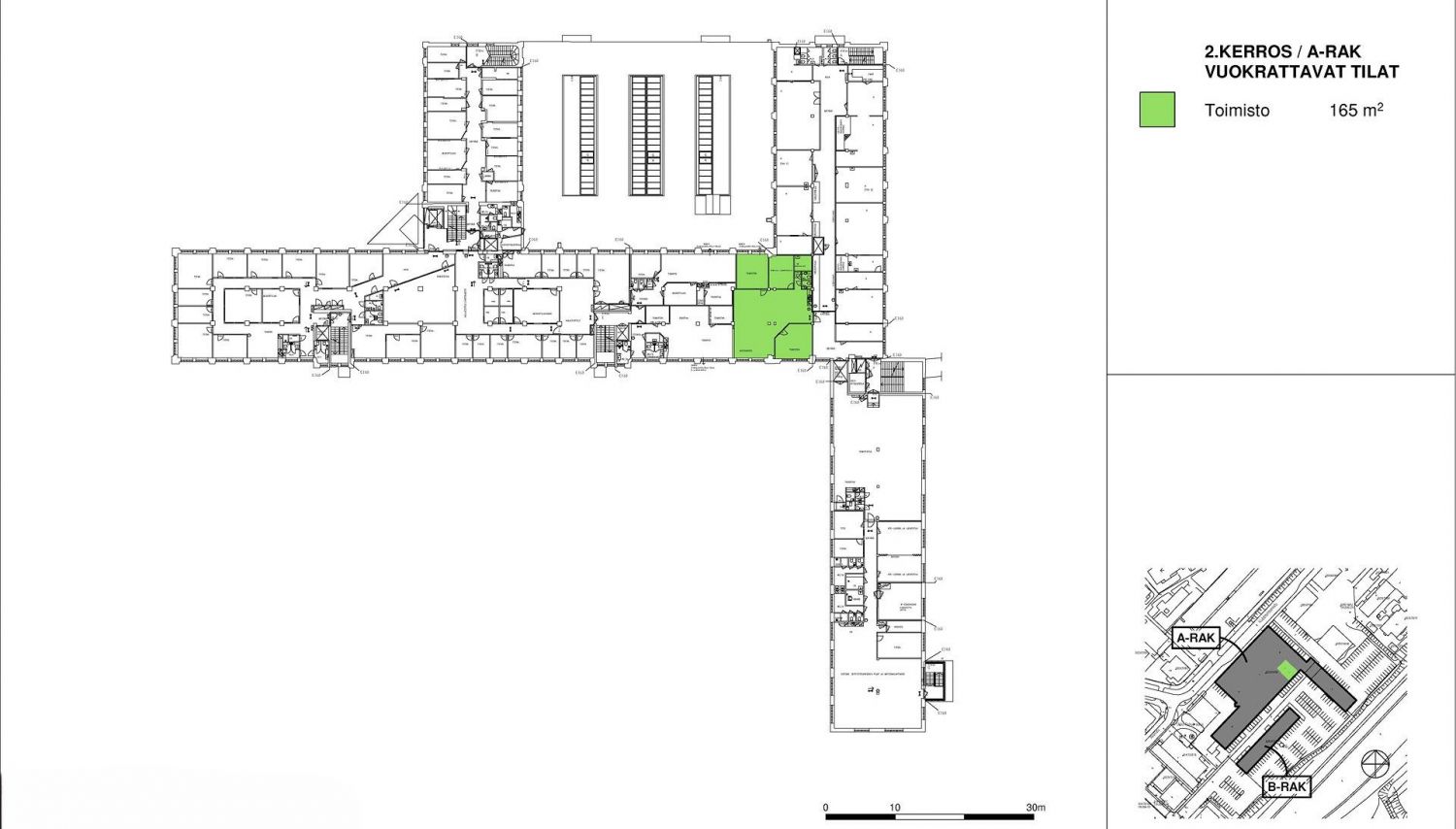
Vuokrattavassa toimistotilassa on kolme isoa huonetta, avotilaa ja keittonurkkaus. Toimitilat sijaitsevat rakennuksen toisessa kerroksessa.
Tämän kohteen omistaa Logicor Oy.
Lisätietoja 020 7290 710. Lisää kohteita www.premises.fi.
Kohteella ei ole lain edellyttämää energiatodistusta.Kerros: 2
Osoite
Kivääritehtaankatu 6, 40100 Jyväskylä
Tilatyyppi
Toimistotilaa
165 m2
Ota yhteyttä
CRE PREMISES
Puh. Näytä puhelinnumero 020 7290 710
Vantaankoskentie 14
01670 VANTAA
Pyydä lisätietoa
