Vuokrataan toimistotilat - Espoo
Keilaranta 10-18, Keilaniemi, 02150 Espoo #10784497
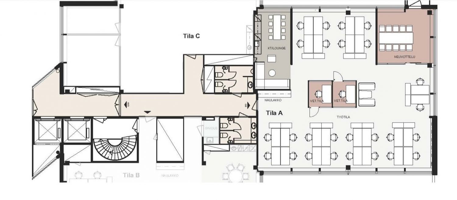
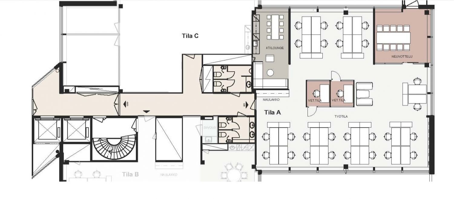
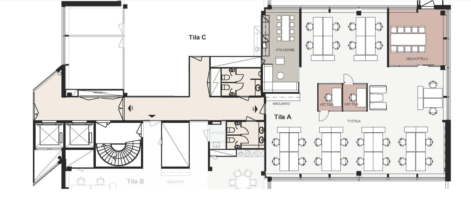
Life Science Centerin B-talossa ylhäällä seitsemännessä kerroksessa sijaitseva upea 245-neliöinen toimisto (sisältää pienen jyvityksen), vapautuu nykykäyttäjältään sopimuksen mukaan. Pohjakuva ja nykytilanne on vasta lähtökohta, tiloja voidaan muokata niin pohjaratkaisultaan kuin pinnoiltaankin tulevan käyttäjän tarpeiden ja maun mukaan. Ota siis rohkeasti yhteyttä ja lähdetään paikan päälle katsomaan kiinteistöä ja tilaa.
Life Science Center (LSC) eli Keilaranta 10-16 sijaitsee aivan nopeasti kasvaneen ja edelleen kehittyvän Keilaniemen ytimessä. Keilaniemi on alue, jossa yhdistyvät monipuoliset palvelut, luonto, meri ja virkistysmahdollisuudet.
LSC:n vuokralaiset nauttivat ensiluokkaisista palveluista - ravintola-, catering- ja aulapalveluiden sekä nykyaikaisten ja valoisien kokous- ja edustustilojen lisäksi kiinteistöstä löytyy myös sisätiloissa oleva auto- ja pyörähalli, autopesula, hammaslääkäri, hieroja, pesula, kuntosali sekä sen yhteydessä oleva Recovery Studio ja runsaasti suihkutiloja. LSC:n työterveysasemapalveluista Heltti.
Kysythän meiltä lisätiedot ja autamme kaikissa vaiheessa haussanne - maksutta.
Croisette on uusi ja innovatiivinen toimitilojen välitysyritys Suomessa. Meillä on vahva halu auttaa teitä löytämään paras toimitilaratkaisu mahdollisimman vaivattomasti.
Huomaathan, että kaikki vapaat ja vapautuvat tilat ovat kauttamme saatavilla. Osa tiloista on hiljaisessa markkinoinnissa, mutta ottamalla meihin yhteyttä saat nekin tietoosi.
Palvelumme on tilanhakijoille täysin maksutonta.
Hissi
Croisette Real Estate Partner
Erottajankatu 5 A 6, 00130 Helsinki
Näytä puhelinnumero
+358 400 585 857
Croisette Vuokraus
Näytä puhelinnumero
+358400585857
