Vuokrataan toimistotilat - Helsinki
Urho Kekkosen katu 4-6, Kamppi, 00100 Helsinki #10784473
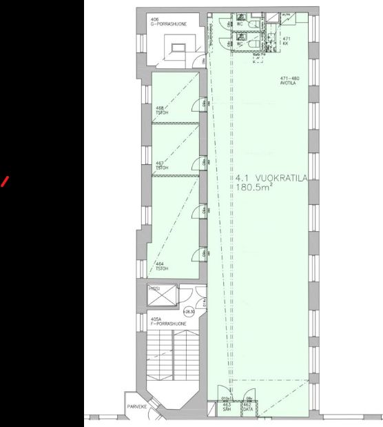
HÄMÄLÄISTEN TALO - toimisto 348,5m2.
Tämä kombi-toimistotila jakautuu 4. ja 5. kerrokseen. Käynti rauhallisen sisäpihan puolelta.
Kahden avotilan lisäksi 6 huonetta, 2 keittiötä, 4 wc-tilaa ja käsivarasto.
Koneellinen ilmanvaihto, huonekohtainen kaukojäähdytys ja kuituyhteys CAT6-sisäverkolla.
Kohde vuokrattavissa myös alvittomille käyttäjille. Mahdollisuus autopaikkaan.
Vapautuminen kesä/2024. KUVAT YLEISKUVIA KIINTEISTÖSTÄ
Lisätietoja ja näytöt numerosta 040 7070 321 / HeikkiKerros: 4+5
Osoite
Urho Kekkosen katu 4-6, 00100 Helsinki
Tilatyyppi
Toimistotilaa
348,5 m2
Kulkuyhteydet
Metroasema, bussiterminaali ja usea raitiovaunulinja löytyvät aivan vierestä.
Autoilijat voivat hyödyntää viereisiä Forumin ja Kampin parkkihalleja.
Autoilijat voivat hyödyntää viereisiä Forumin ja Kampin parkkihalleja.
Ota yhteyttä
CRE PREMISES
Puh. Näytä puhelinnumero 020 7290 710
Vantaankoskentie 14
01670 VANTAA
Pyydä lisätietoa
