Vuokrataan toimistotilat - Helsinki
Urho Kekkosen katu 4-6, Kamppi, 00100 Helsinki #10784471
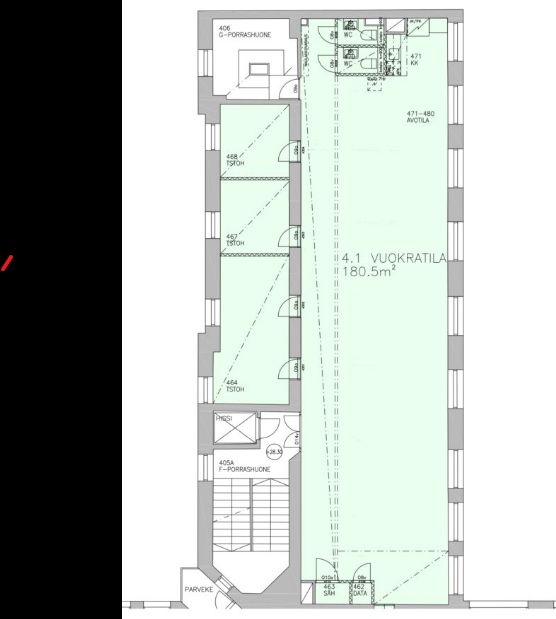
HÄMÄLÄISTEN TALO - toimisto 180,5m2.
Tämä kombi-toimistotila sijaitsee 4. krs. Käynti rauhallisen sisäpihan kautta.
Avotilan lisäksi 3 huonetta, keittiö ja 2 wc-tilaa.
Koneellinen ilmanvaihto, huonekohtainen kaukojäähdytys ja kuituyhteys CAT6-sisäverkolla. Mahdollisuus autopaikkaan.
Kohde vuokrattavissa myös alvittomille käyttäjille.
Vapautuminen kesä/2024. KUVAT YLEISKUVIA KIINTEISTÖSTÄ
Lisätietoja ja näytöt numerosta 040 7070 321 / HeikkiKerros: 4
Osoite
Urho Kekkosen katu 4-6, 00100 Helsinki
Tilatyyppi
Toimistotilaa
180,5 m2
Kulkuyhteydet
Metroasema, bussiterminaali ja usea raitiovaunulinja löytyvät aivan vierestä.
Autoilijat voivat hyödyntää viereisiä Forumin ja Kampin parkkihalleja.
Autoilijat voivat hyödyntää viereisiä Forumin ja Kampin parkkihalleja.
Ota yhteyttä
CRE PREMISES
Puh. Näytä puhelinnumero 020 7290 710
Vantaankoskentie 14
01670 VANTAA
Pyydä lisätietoa
