Vuokrataan liiketilat - Tampere
Hämeenkatu 9, Keskusta, 33100 Tampere #10784440
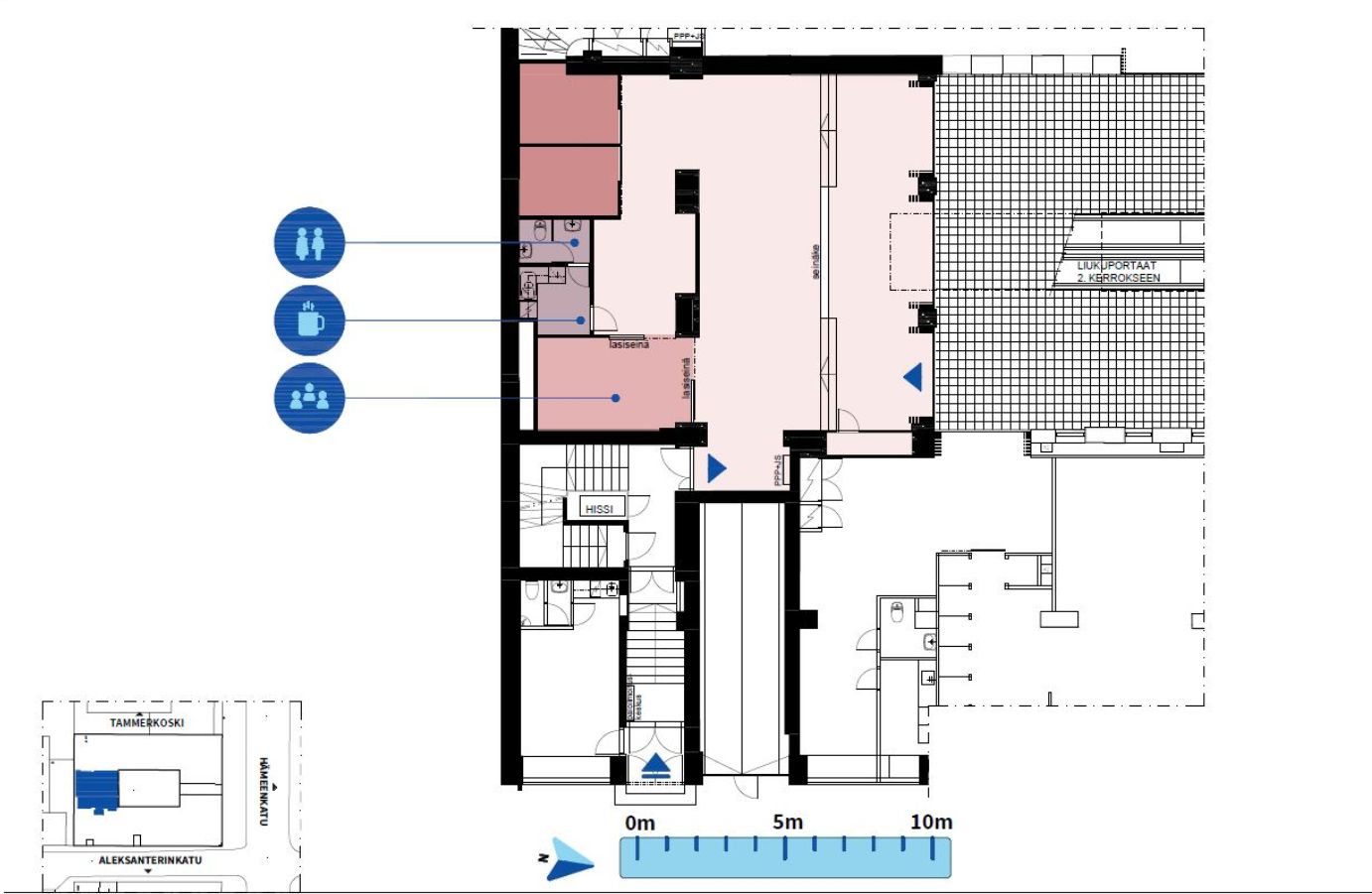
169 m2 liiketila Varmantalossa
Osoite
Hämeenkatu 9, 33100 Tampere
Tilatyyppi
Liiketilaa
169 m2
Kiinteistö
Vuokrataan katutason liikehuoneisto Tampereen ydinkeskustasta. Tilan koko on 169 m2. Tila sijaitsee Hämeenkatu 9:n sisäpihalla katutasossa. Samassa kiinteistössä on useita vaatekauppoja, kahviloita, pankki, kuntosali ja muita yrityksiä. Kyseessä on yhtenäinen liiketila, jonka takaosassa on kaksi huonetta, neuvottelutila ja sosiaalitilat. Isot näyteikkunat. Myös huoneet ovat lasiseinällä tehtyjä.
Tila ei sovellu ravintola- tai kahvila käyttöön.
Talosta on suora hissiyhteys parkkitalo P-Hämppiin.
Tila ei sovellu ravintola- tai kahvila käyttöön.
Talosta on suora hissiyhteys parkkitalo P-Hämppiin.
Vapautuu
Kysy
Kerros
katutaso
Ota yhteyttä
Logistila Oy
Kauppakatu 14, 33210 TAMPERE
Jukka Nukari
Näytä puhelinnumero
0440759789
Pyydä lisätietoa
