Vuokrataan toimistotilat - Helsinki
Itämerenkatu 1, Ruoholahti, 00180 Helsinki #10784340
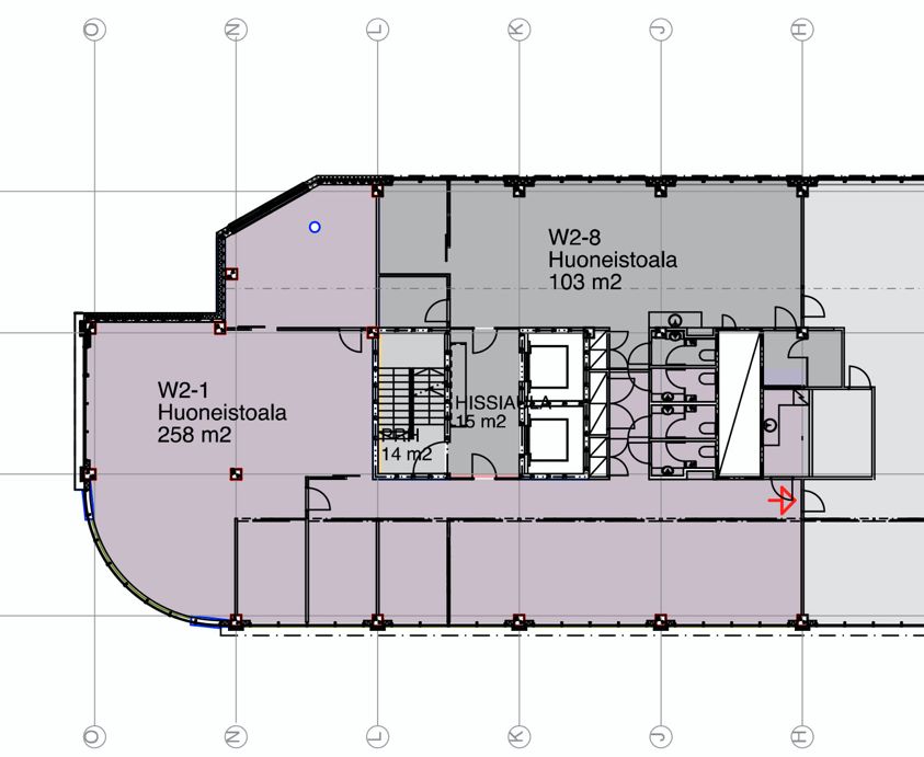
Vuokrataan toimistotilaa huippusijainnilta merellisestä Ruoholahdesta. Tästä 2. kerroksen toimistosta löytyy työhuoneita sekä avotilaa, minikeittiö ja omat wc:t. Tilaa on mahdollista muokata seuraavalle vuokralaiselle sopivaksi. Ilmoituksen kuvat ovat yleiskuvia kiinteistön tiloista. Tila on heti vapaa.
Ruoholahden Dimensio on vuonna 1998 valmistunut moderni liikerakennus, jonka valoisat ja joustavat toimistotilat soveltuvat niin avotoimistoksi kuin myös huonetoimistoksi toivomustesi mukaisesti. Kiinteistössä suosittu lounasravintola, erikseen vuokrattavia kokous- ja neuvottelutiloja, kuntosali, sekä suihkutilat pyöräilijöille. Ylimmässä kerroksessa on viihtyisät ja avarat sauna- ja kokoustilat yritysten omien tilaisuuksien järjestämistä varten.
Erittäin hyvät julkiset yhteydet metrolla, raitiovaunulla ja linja-autolla ja helppo saapua myös omalla autolla. Kiinteistön oman pysäköintihallin lisäksi vuokralaisilla on käytössä pysäköintitilaa viereisestä Ruohoparkista, josta on lämmin kulkuyhteys taloon.
Lisätietoja soita 020 730 4530 tai info@repoint.fi. Palvelumme on tilanhakijalle ilmainen.
Repoint Toimitilat Oy
Itälahdenkatu 22 B, 00210 Helsinki
Näytä puhelinnumero
020 730 4530
Lisätietoja soita Näytä puhelinnumero 020 730 4530 tai info@repoint.fi
https://repoint.fi/