Vuokrataan toimistotilat - Helsinki
Pursimiehenkatu 29-31, Punavuori, 00150 Helsinki #10784300
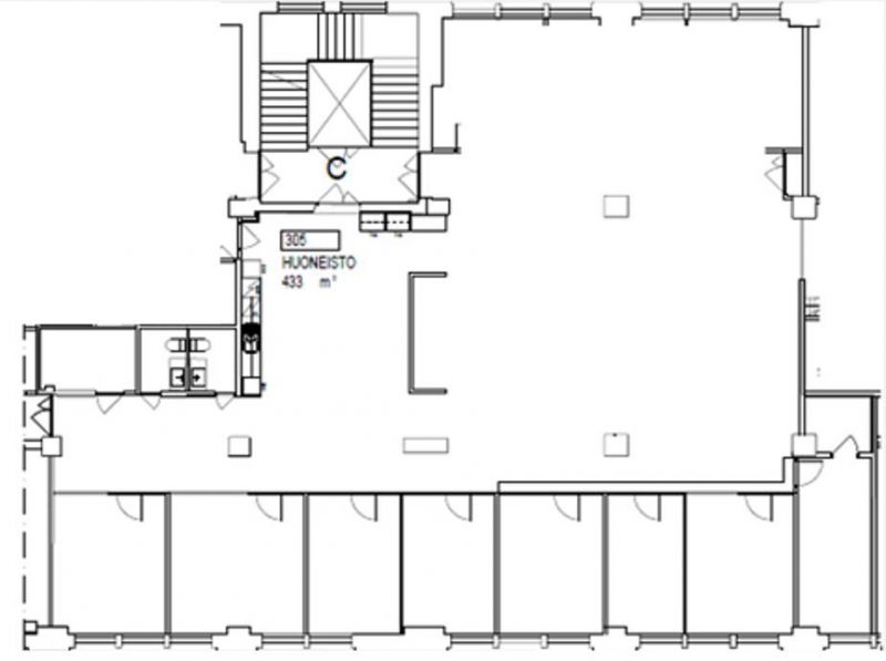
Vuokrataan hyväkuntoinen muuttovalmis toimisto Merikorttelista. Toimistossa on 8 huonetta, jonka lisäksi iso avotila ja keittiö sekä 2 x WC. Valoisa ja avara kokonaisuus! Tila on heti vapaa.
Erinomainen sijainti Punavuoressa, suositussa dynaamisessa ja yhteisöllisessä Merikorttelissa! Alueella paljon laadukkaita ravintoloita ja kahviloita. Pysäköintitilaa tarjolla korttelin omassa parkkihallissa sekä läheisissä pysäköintilaitoksissa. Läheltä kulkee myös raitiovaunu ja linja-autot.
Lisätietoja soita 020 730 4530 tai info@repoint.fi. Palvelumme on tilanhakijalle ilmainen.
Hissi
Repoint Toimitilat Oy
Itälahdenkatu 22 B, 00210 Helsinki
Näytä puhelinnumero
020 730 4530
Lisätietoja soita Näytä puhelinnumero 020 730 4530 tai info@repoint.fi
https://repoint.fi/