Vuokrataan toimistotilat - Espoo
Westendintie 1, Westend, 02160 Espoo #10784294
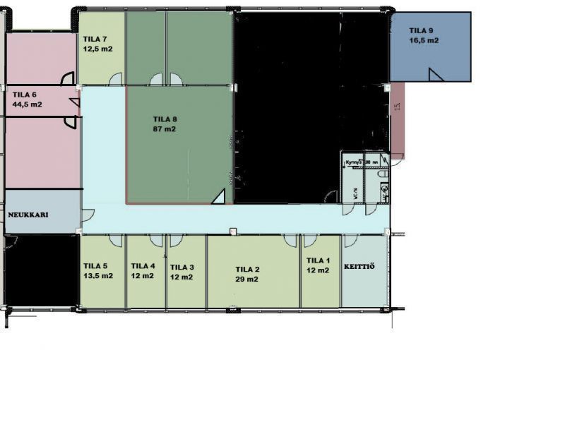
2. kerroksen 12,5 m² pientoimisto Länsiväylän varrelta arvokkaassa Espoon Westendissä
Osoite
Westendintie 1, 02160 Espoo
Tilatyyppi
Toimistotilaa
12,5 m2
Pohjapiirros
Kiinteistö
Business-studiotiloja, jotka soveltuvat erinomaisesti sekä pienimmille tai aloitteleville yrityksille, että myös isoimmille yrityksille jotka haluavat nauttia vaivattomuudesta.
Yhteiskäyttöiset wc- ja keittiötilat.
Tiloissa on viilennys.
Vuokra sisältää: sähkö, siivous 1 krt/viikko, internet, kokoustilan käytön
Tilat sijaitsevat kiinteistön B-rapun 2. kerroksessa ja kerrokseen ei ole hissiä.
Sillan toiselta puolelta Tapiolasta löytyy runsas palveluvalikoima sekä metroasema. Kiinteistö on saneerattu vuonna 2000 ja se sijaitsee hyvien kulkuyhteyksien päässä niin julkisilla kuin omalla autolla liikuttaessa.
Yhteiskäyttöiset wc- ja keittiötilat.
Tiloissa on viilennys.
Vuokra sisältää: sähkö, siivous 1 krt/viikko, internet, kokoustilan käytön
Tilat sijaitsevat kiinteistön B-rapun 2. kerroksessa ja kerrokseen ei ole hissiä.
Sillan toiselta puolelta Tapiolasta löytyy runsas palveluvalikoima sekä metroasema. Kiinteistö on saneerattu vuonna 2000 ja se sijaitsee hyvien kulkuyhteyksien päässä niin julkisilla kuin omalla autolla liikuttaessa.
Kulkuyhteydet
Bussipysäkki alle 100 m, Juna-asema 5,1 km, Lentoasema 18,7 km
Vapautuu
Heti
Kerros
2
Energiatehokkuusluokka
Ei lain edellyttämää energiatodistusta
Ota yhteyttä
ScanReal Oy LKV
Opus Business Park
Hitsaajankatu 24
00810 Helsinki
info@scanreal.fi
Puh:
Näytä puhelinnumero
020 730 8830
Sopivat toimitilat yhdellä otolla!
Kartoitamme toimitilatarpeesi ja etsimme yrityksellesi parhaiten sopivat vapaat toimitilat. Koska vuokranantajat maksavat palvelumme, on tämä yrityksellesi veloituksetonta.
OTA YHTEYTTÄ - SOVI NÄYTTÖ!
Kaikki kohteemme eivät ole netissä, kerro tilatarpeesi niin kartoitamme vaihtoehdot.
Palvelumme on tilanhakijalle ilmainen
Pyydä lisätietoa
