Vuokrataan toimistotilat - Helsinki
Lönnrotinkatu 32, Kamppi, 00180 Helsinki #10784245
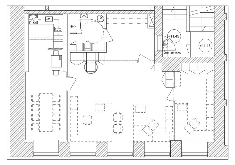
LÖNNROTINKATU 32 - toimisto 85,5m2
Tämä arkkitehtitoimiston itselleen viimeistelemä toimistotila sijaitsee rakennuksen 2. krs.
Valoisan avotilan lisäksi, yksi huone, iso keittiö ja wc/suihkutila inva-mitoituksella.
Tilan käyttökokemusta kohottavat desibeli-ikkunat ja koneellinen ilmanvaihto. Asiakkaiden ohjaus kadulta sisätiloihin ovipuhelimen avulla.
Lisätiedot ja kohdenäytöt: p. 040 7070 321 / HeikkiKerros: 2
Osoite
Lönnrotinkatu 32, 00180 Helsinki
Tilatyyppi
Toimistotilaa
85,5 m2
Kulkuyhteydet
Kampin Metroasema: 700 m - Raitiovaunupysäkki (1/1T/6/6H): 290 m - Raitiovaunupysäkki (7/7H/9/9H/9N): 400 m - Bussipysäkki (20/30): 220 m - Länsiterminaali: 1,5 km
Ota yhteyttä
CRE PREMISES
Puh. Näytä puhelinnumero 020 7290 710
Vantaankoskentie 14
01670 VANTAA
Pyydä lisätietoa
