Vuokrataan toimistotilat - Helsinki
Ratakatu 1, Kaartinkaupunki, 00120 Helsinki #10784214
Vuokrattavana toimistotilaa loistavalla sijainnilla Helsingin Kaartinkaupungissa.
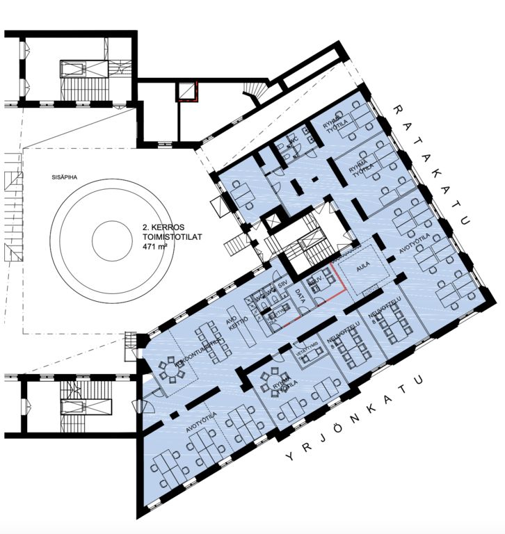
Tämä 471 m² tila sijaitsee kiinteistön 2. kerroksessa. Tila voidaan tarvittaessa jakaa kahdelle käyttäjälle. Tilat ovat betonilla, ja ne viimeistellään uudelle vuokralaiselle. Valmistuminen min. n 2,5kk ajassa. Kuvat ovat havainnekuvia kiinteistön tiloista.
Vanhanajan arvokkuutta henkivä toimitilakiinteistö Gloria sijaitsee erinomaisella paikalla Helsingin keskustan tuntumassa Kaartinkaupungin ja Punavuoren rajalla. Tämä Georg Nummelinin suunnittelema kiinteistö on valmistunut vuonna 1930 ja se on entisöity toimitilakäyttöön sen historiaa kunnioittaen.
Lähistöltä löytyvät kaikki keskustan monipuoliset palvelut sekä julkisen liikenteen yhteydet. Autoilijoille löytyy pysäköintitilaa sekä sähköauton latauspisteitä Aimo Park Pikku Erottajan parkkihallista.
Kysy lisää numerosta 044 723 4700 tai info@bref.fi. Palvelumme on tilanhakijoille ilmainen.
Hissi
Bureau Real Estate Finland Oy
Lars Sonckin kaari 16, 02600 Espoo
Näytä puhelinnumero
0447234700
Bureau Real Estate Finland Oy
https://www.bref.fi