Vuokrataan toimistotilat - Helsinki
Pohjoinen Makasiinikatu 6 A, Kaartinkaupunki, 00130 Helsinki #10784141
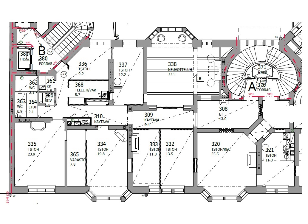
Historiallisen upea toimisto, korkeat huoneet, näkymät sekä kadulle että sisäpihalle. Pinnat kaipaavat uusimista joiden muutos suunnitellaan seuraavan käyttäjän tarpeen mukaan yhdessä heidän kanssaan.
Toimistossa on erilaisia tyä- ja tiimihuoneita sekä näytävä neuvotteluhuone.
Tilassa runsaasti kakluuneja joista talo on myös kuuluisa – joista osa on ollut malleja silloista Maailmannäyttelyä varten.
Kaunis ja suojeltu Agronomitalo (silloin Lääkäreiden talo) valmistui vuonna 1901 ja se seisoo näyttävästi Kasarmitorin laidalla. Kiinteistöä on peruskorjattu merkittävästi viime vuosina.
Tämän kulmatontin, jolla sijaitsi tuolloin puutalo, ostivat vuonna 1898 veljekset Axel, Georg ja Ernst Ehrnrooth. Georg ja Ernst Ehrnrooth myivät osuutensa sitten kahdelle lääkärille, Axel Holmbergille ja Wilhelm Zilliacukselle jonka jälkeen taloon muutti muitakin lääkäreitä, jotka asuivat siellä sekä pitivät talossa vastaanottoaan. Nykyään talossa on toimistoja sekä liiketiloja joissa toimii mm. ravintola The Cock ja Kotileipomo Eromanga.
Croisette on uusi ja innovatiivinen toimitilojen välitysyritys Suomessa. Meillä on vahva halu auttaa teitä löytämään paras toimitilaratkaisu mahdollisimman vaivattomasti.
Huomaathan, että kaikki vapaat ja vapautuvat tilat ovat kauttamme saatavilla. Osa tiloista on hiljaisessa markkinoinnissa, mutta ottamalla meihin yhteyttä saat nekin tietoosi.
Palvelumme on tilanhakijoille täysin maksutonta.
Croisette Real Estate Partner
Erottajankatu 5 A 6, 00130 Helsinki
Näytä puhelinnumero
+358 400 585 857
Croisette Vuokraus
Näytä puhelinnumero
+358400585857
