Vuokrataan toimistotilat - Helsinki
Porkkalankatu 7, Ruoholahti, 00180 Helsinki #10784036
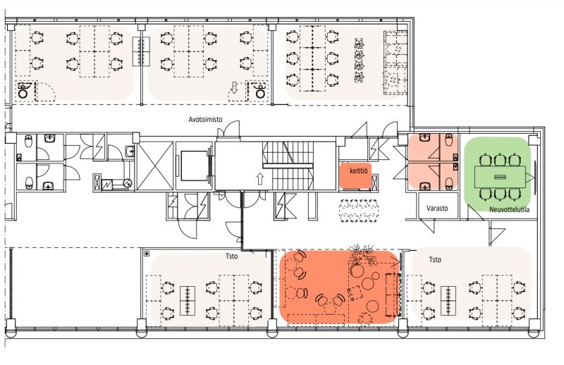
Vuokrattavana toisen kerroksen valoisaa ja tehokasta toimistotilaa.
Osoite
Porkkalankatu 7, 00180 Helsinki
Tilatyyppi
Toimistotilaa
310 m2
Kiinteistö
Vuokrattavana toisen kerroksen valoisaa ja tehokasta toimistotilaa. Toimistossa on avotila, 2 työhuonetta, keittiö ja Wc-tila.
Sijainti
Ruoholahti, Helsinki
Pysäköinti
Pysäköintihalli, piha, kauppakeskuksen parkki
Palvelut
Ruoholahden palvelut
Kulkuyhteydet
Hyvät kulkuyhteydet
Vapautuu
Heti
Kerros
2
Energiatehokkuusluokka
F2007
Näkyvällä paikalla
Hissi
Ota yhteyttä
REALIUM OY LKV
Tammasaarenkatu 1, 00180 Helsinki
Vaihde:
Näytä puhelinnumero
010 326 346
Tuomo Mäkelä
tuomo.makela@realium.fi
p.
Näytä puhelinnumero
044 050 1158
Joel Keto
joel.keto@realium.fi
p.
Näytä puhelinnumero
045 317 0330
KAIKKI TILAVAIHTOEHDOT KERRALLA!
SOITA - MEILAA JA TILAA NÄYTTÖ!
Ilmainen palvelu tilanhakijoille.
Kartoitamme parhaat tilavaihtoehdot.
Kaikki kohteet eivät ole netissä.
Pyydä lisätietoa
