Vuokrataan toimistotilat - Espoo
Lars Sonckin Kaari 10-16, Leppävaara, 02600 Espoo #10783968
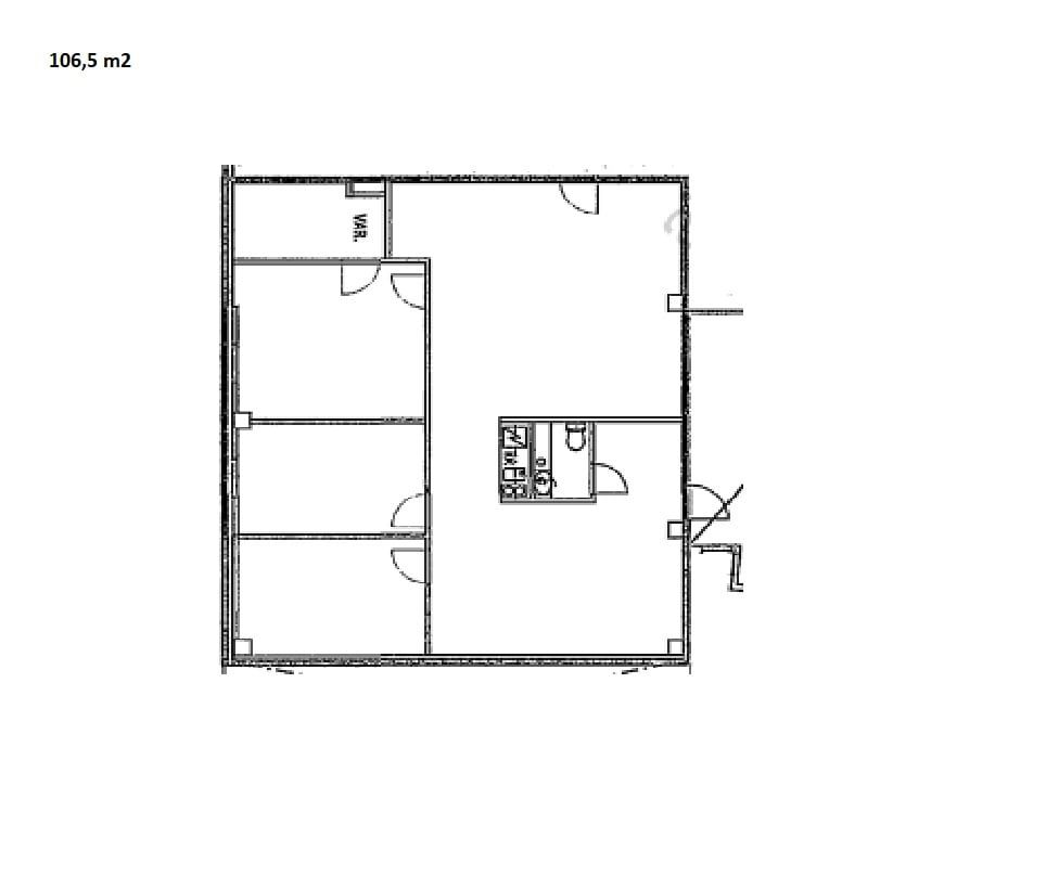
Leppävaarassa, Stella Business Parkin Luna-talossa tarjolla 106,5 m2 tehokasta toimistoa - ja järkevällä kuukausikustannuksella.
Tilassa kolme huonetta työskentelyyn tai neuvotteluihin, hieman avotilaa, avokeittiö ja oma WC.
Tila tällä hetkellä siisti ja peruskuntoinen, mutta pinnat voidaan uusia modernimmaksi kunhan tulette taloon riittävän pitkäksi aikaa.
Stella Business Park sijaitsee erinomaisella paikalla Espoon Leppävaarassa. Kokonaisuuteen kuuluvat neljä kiinteistöä jotka on ristitty Lunaksi, Terraksi, Solarikseksi ja Novaksi. Modernit toimitilat sopivat kaikenkokoisille toimijoille ja tilat ovat helposti muunneltavissa omaa toimintaa tukeviksi. Kohteessa vuokralaisella on hyvä olla kun palveluita työnarkeen löytyvät mm. aula- ja postituspalvelu, avara kuntosali, juuri valmistunut auditorio, upeat kattokerroksen saunatilat, neuvottelukeskus, autopesula sekä lounasravintola.
Juna-asemalle kävelet nopeasti ja autolla saapuvat iloitsevat että Stella Business Parkissa on myös kaksi suurta parkkihallia, runsaasti parkkitilaa sekä sähköauton latauspisteitä.
Kuvat ovat yleisistä tiloista ja talon muista toimistoista.
Croisette on uusi ja innovatiivinen toimitilojen välitysyritys Suomessa. Meillä on vahva halu auttaa teitä löytämään paras toimitilaratkaisu mahdollisimman vaivattomasti.
Huomaathan, että kaikki vapaat ja vapautuvat tilat ovat kauttamme saatavilla. Osa tiloista on hiljaisessa markkinoinnissa, mutta ottamalla meihin yhteyttä saat nekin tietoosi.
Palvelumme on tilanhakijoille täysin maksutonta.
Hissi
Croisette Real Estate Partner
Erottajankatu 5 A 6, 00130 Helsinki
Näytä puhelinnumero
+358 400 585 857
Croisette Vuokraus
Näytä puhelinnumero
+358400585857
