Vuokrataan toimistotilat - Oulu
Sammonkatu 8, Kaijonharju, 90570 Oulu #10783711
Osoite
Sammonkatu 8, 90570 Oulu
Tilatyyppi
Toimistotilaa
235 m2
Vuokra
1880,00 €/kk
Vuokraan sisältyy lämpö
Pysäköinti
Yhteensä 10 autopaikkaa, joista 4 lämpötolpallisia
Muuta
Kaijonharjusta aivan yliopiston vierestä vuokrattavana siistiä juuri remontoitua toimistotilaa ja varastotilaa. Kiinteistössä on tehokas koneellinen ilmanvaihto. Muutostyöt ovat mahdollisia tilaratkaisujen osalta. Autopaikkoja löytyy tontilta. Vuokraan sisältyy lämmitys, vedestä ja sähköstä erilliskorvaukset.
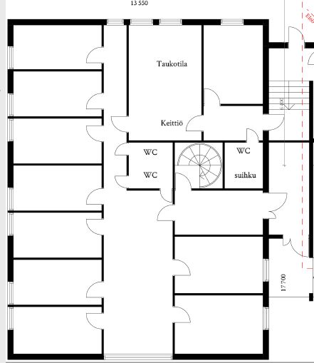
Kohteesta on mahdollista vuokrata yksittäisiä toimistohuoneita (huoneiden koot 6,5-10,5m2) hintaan 250€/kk +alv sis. lämmityksen, sähkön ja veden. WC:t ja keittiö ovat yhteiskäyttöiset, ja yksittäisen huoneen vuokraan kuuluu näiden käyttöoikeus.
Lisätiedot 040 5400 672 tai joni.romppainen@kiinteistotahkola.fi.
Eikö tämä ole sopiva? Kysy muita vaihtoehtojamme!
Kohteesta on mahdollista vuokrata yksittäisiä toimistohuoneita (huoneiden koot 6,5-10,5m2) hintaan 250€/kk +alv sis. lämmityksen, sähkön ja veden. WC:t ja keittiö ovat yhteiskäyttöiset, ja yksittäisen huoneen vuokraan kuuluu näiden käyttöoikeus.
Lisätiedot 040 5400 672 tai joni.romppainen@kiinteistotahkola.fi.
Eikö tämä ole sopiva? Kysy muita vaihtoehtojamme!
Vapautuu
Heti vapaa
Rakennusvuosi
1985
Kerros
1
Ota yhteyttä
Kiinteistö-Tahkola Oy
Lumijoentie 1, 90400 Oulu
Näytä puhelinnumero
0207 480 250
Joni Romppainen
Näytä puhelinnumero
0405400672
Pyydä lisätietoa
