Vuokrataan toimistotilat - Helsinki
Eerikinkatu 28, 00180 Helsinki #10783591
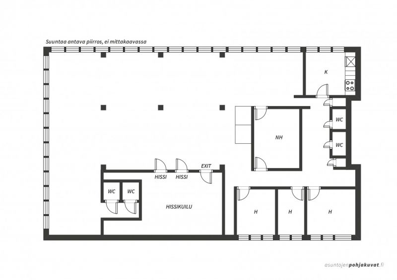
Seitsemännen kerroksen valoisa toimistotila Eerikinkadun ja Albertinkadun kulmassa.
Lähellä mm. Kampin kauppakeskus, pysäköintihalliin n. 100 m.
Avotilaa ja kolme huonetta, keittiö. Tila on muokattavissa.
Kysy lisää/ pyydä lisää kuvia mika.tilli@rhg.fi, 040 7013005
Osoite
Eerikinkatu 28, 00180 Helsinki
Tilatyyppi
Toimistotilaa
375 m2
Vapautuu
Kysy
Huoneiden lukumäärä
1
Energiatehokkuusluokka
Ei lain edellyttämää energiatodistusta
Ota yhteyttä
RHG Real Estate
Hämeenkatu 2 B20, 20500 Turku
Näytä puhelinnumero
020 734 4020
Mika Tilli
Välittäjä, LKV
Näytä puhelinnumero
0407013005
Pyydä lisätietoa
