Vuokrataan toimistotilat - Jyväskylä
Optimes Business Garden II, Paperitehtaankatu 11, Keskusta, 40100 Jyväskylä #10783493
Uudishanke Jyväskylän moderneimmassa kaupunginosassa.
Osoite
Paperitehtaankatu 11, 40100 Jyväskylä
Tilatyyppi
Toimistotilaa
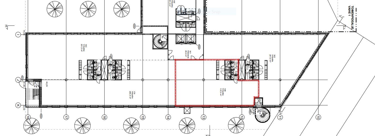
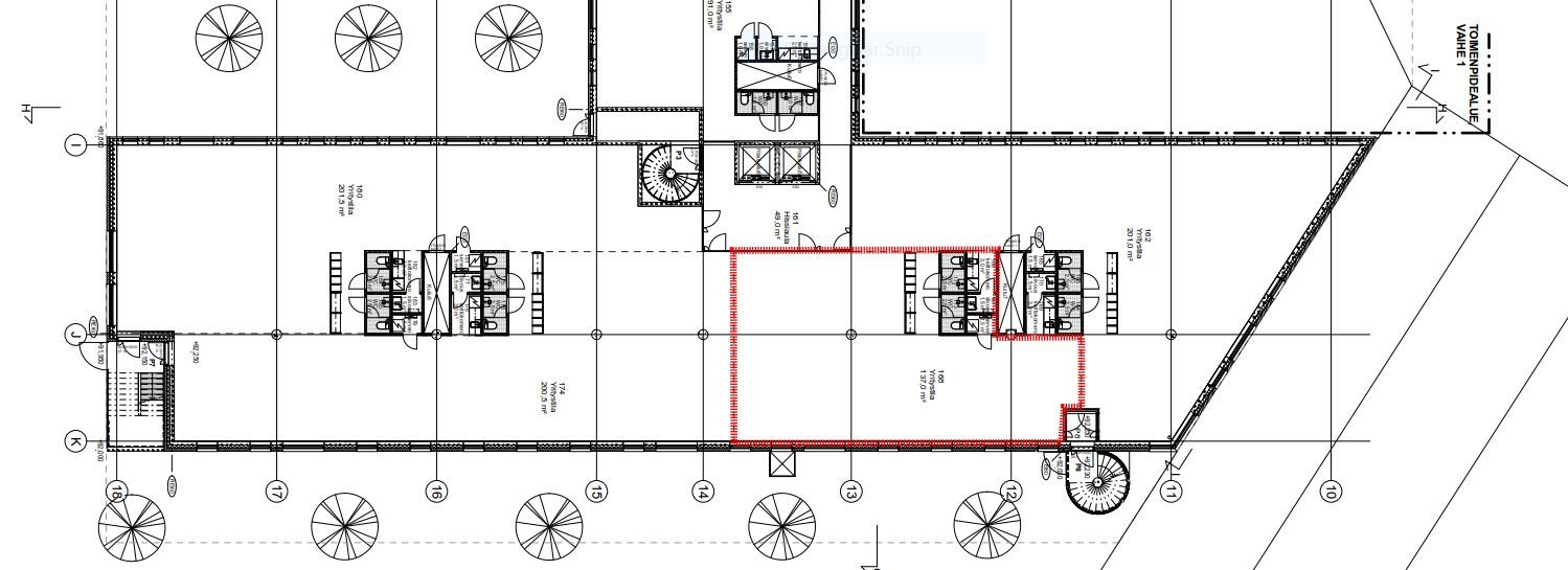
137 m2
Tilajako
Jaettavissa
Muuta
Jyväskylässä sijaitsevan Kankaan Smart City -alueen työpaikkarakentamiselle on luvassa jatkoa, kun alueelle valmistuneen Business Gardenin 2. vaihetta aletaan rakentaa. Nyt yrityksellänne loistava mahdollisuus sijoittua uusiin ja älykkäisiin tiloihin kehittyvälle Kankaan alueelle.
Rakennusurakan toisessa vaiheessa Kankaalle valmistuu yhteensä n. 3900 m2 monikäyttöistä toimistotilaa. Tilat on mahdollista jakaa useammalle toimijalle. Kuhunkin tilakokonaisuuteen sisältyy oma keittiötila, tarkemmasta tilajaosta sovitaan vuokrauksen yhteydessä. Kohteessa on 4G-sisäverkko sekä kattavat palvelut, kuten aulapalvelu, lounasravintola ja kokoustiloja.
Tilojen terveellisyys, muuntojoustavuus ja tehokkuus ovat olleet suunnittelun keskeisimpiä tavoitteita viihtyisyyttä unohtamatta. Kiinteistön omat sekä Kankaan alueen palvelut tukevat toimiston arjen sujuvuutta.
Kankaan alue sijaitsee hyvien kulkuyhteyksien varrella lähellä keskustaa.
Soita ja kysy lisätietoa!
Rakennusurakan toisessa vaiheessa Kankaalle valmistuu yhteensä n. 3900 m2 monikäyttöistä toimistotilaa. Tilat on mahdollista jakaa useammalle toimijalle. Kuhunkin tilakokonaisuuteen sisältyy oma keittiötila, tarkemmasta tilajaosta sovitaan vuokrauksen yhteydessä. Kohteessa on 4G-sisäverkko sekä kattavat palvelut, kuten aulapalvelu, lounasravintola ja kokoustiloja.
Tilojen terveellisyys, muuntojoustavuus ja tehokkuus ovat olleet suunnittelun keskeisimpiä tavoitteita viihtyisyyttä unohtamatta. Kiinteistön omat sekä Kankaan alueen palvelut tukevat toimiston arjen sujuvuutta.
Kankaan alue sijaitsee hyvien kulkuyhteyksien varrella lähellä keskustaa.
Soita ja kysy lisätietoa!
Vapautuu
Kysy
Jaettavissa
Ota yhteyttä
Infonia Oy
Kauppakatu 18 A, 40100 Jyväskylä
Näytä puhelinnumero
+358 407579731
Mikko Hirvi
Näytä puhelinnumero
+358 407579731
Pyydä lisätietoa
