Vuokrataan toimistotilat - Tampere
Hermiankatu 12, Hervanta, 33720 Tampere #10783458
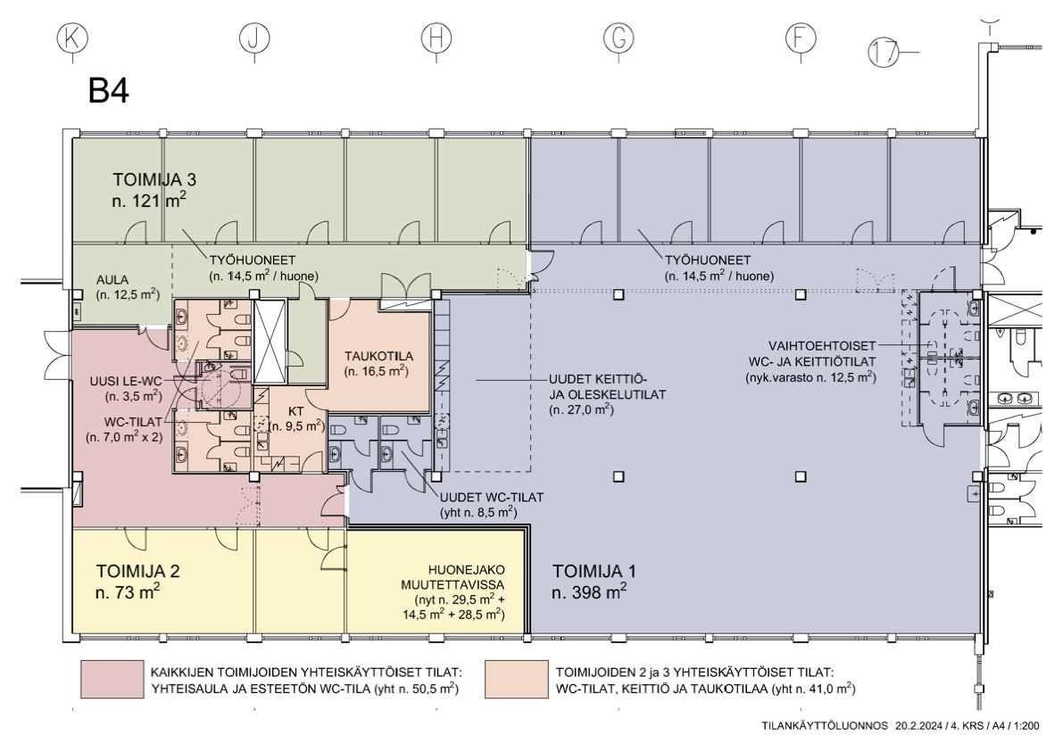
Hermia 2 tarjoaa yrityksellenne kustannustehokkaat neliöt erittäin sujuvien liikenneyhteyksien äärellä. Tilat ovat muokattavissa toiveisiinne sopiviksi. Yhdistettävissä viereiseen 697 m2 tilaan.
Talo on valmistunut vuonna 1991. Peruskorjauksia on tehty vuosina 2004-2005 sekä 2014, joiden ansiosta kiinteistö on moderni ja toimiva. Tilassa on koneellinen ilmanvaihto jäähdytyksellä.
Tänne on helppo saapua ratikalla, bussilla tai omalla autolla. Lähimmät ratikka- ja bussipysäkit löytyvät talon edestä. Lähistöltä löytyvät myös hyvät palvelut kauppoineen, lounasravintoloineen ja kuntosaleineen. Omalla autolla kulkeville on parkkitilaa saatavilla pihasta.
Otathan yhteyttä niin jutellaan lisää ja sovitaan näytöstä. Palvelemme teitä paikallisesti.
Yrityksemme Croisette Finland Oy auttaa tilanhakijoita löytämään sopivat toimitilat asiantuntevalla ja laadukkaalla otteella. Kauttamme saatte tietoonne useiden vuokranantajien vapaat toimitilat, joiden tarjonnasta kartoitamme juuri teille parhaat vaihtoehdot. Autamme mielellämme toimistotilan haun suhteen ja toimimme luotettavana kumppaninasi tilanhakuprosessin alusta loppuun tarjoten mutkatonta palvelua. Ja mikä parasta – palvelumme on täysin ilmainen tilanhakijalle.
Croisette Real Estate Partner
Erottajankatu 5 A 6, 00130 Helsinki
Näytä puhelinnumero
+358 400 585 857
Jenni Lampinen
Näytä puhelinnumero
+358405287396
