Vuokrataan liiketilat - Oulu
Saaristonkatu 2, Keskusta, 90100 Oulu #10783360
Vuokrattavana liiketilaa Oulun keskustassa.
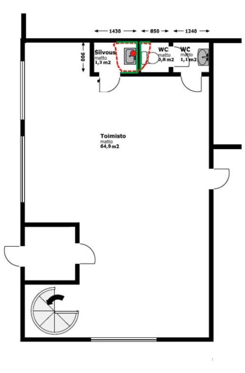
Tämä 67,5m2 kokoinen valoisa liiketila sijaitsee asuintalon kivijalassa, rakennuksen kulmassa. Tilassa on wc, siivouskomero ja isot ikkunat kadun suuntaan. Vieressä toimii K-market.
Vuonna 2000 valmistuneessa Oulun keskustan tuntumassa Meritullissa sijaitsevassa taloyhtiössä on 35 asuinhuoneistoa ja liiketiloja.
Osoite
Saaristonkatu 2, 90100 Oulu
Tilatyyppi
Liiketilaa
67 m2
Palvelut
Kaikki keskustan palvelut lähellä.
Vapautuu
Kysy
Rakennusvuosi
2000
Kerros
1
Energiatehokkuusluokka
Ei lain edellyttämää energiatodistusta
Ota yhteyttä
Bureau Real Estate Finland Oy
Lars Sonckin kaari 16, 02600 Espoo
Näytä puhelinnumero
0447234700
Bureau Real Estate Finland Oy
https://www.bref.fiPyydä lisätietoa
