Vuokrataan liiketilat - Tampere
Aleksanterinkatu 37, Keskusta, 33100 Tampere #10783352
Tyylikäs liikehuoneisto Tampereen keskustasta
Osoite
Aleksanterinkatu 37, 33100 Tampere
Tilatyyppi
Liiketilaa
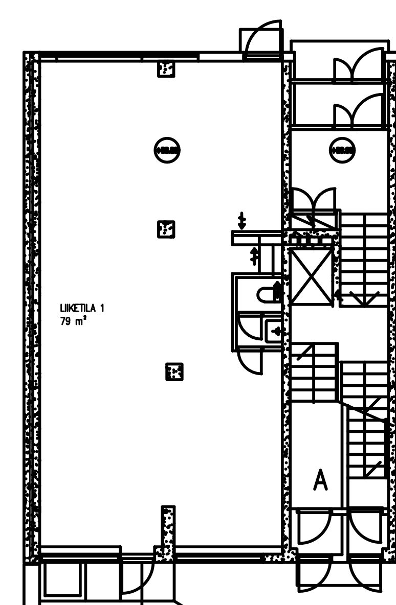
79 m2
Kiinteistö
Etsitkö toimivaa liiketilaa Tampereen keskustasta? Tämä Aleksanterinkatu 37:ssa odottava toimitila toivoo saavansa juuri sinun liiketoimintasi omien seiniensä sisään.
Pinta-ala 79m2 ja korkeus jopa 4m. Tilasta löytyy myös oma WC ja pieni keittiökomero.
Tämä liiketila toimii loistavasti myymälänä, kahvilana (ei rasvakanavia, eikä -hormia) tai vaikkapa studiona.
Ota yhteyttä ja käydään katsomassa paikan päällä tarkemmin!
Pinta-ala 79m2 ja korkeus jopa 4m. Tilasta löytyy myös oma WC ja pieni keittiökomero.
Tämä liiketila toimii loistavasti myymälänä, kahvilana (ei rasvakanavia, eikä -hormia) tai vaikkapa studiona.
Ota yhteyttä ja käydään katsomassa paikan päällä tarkemmin!
Vapautuu
Kysy
Kerros
1
Ota yhteyttä
LogisTila Oy
Kauppakatu 14, 33210 Tampere
Tuomas Lehtinen
Näytä puhelinnumero
044 491 5961
Pyydä lisätietoa
