Vuokrataan toimistotilat - Helsinki
Elimäenkatu 17-19, Vallila, 00510 Helsinki #10783123
Vuokrattavana siistiä pientoimistotilaa Vallilassa, modernissa toimistokiinteistössä.
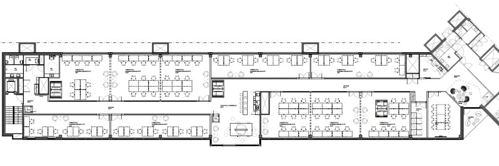
Tämä 48 m² toimisto sijaitsee 3. kerroksen POOL Work -alueella. Vuokraan sisältyvät 24/7 pääsy tiloihin, WLAN-yhteys, sähkö, kahvi, tee, nimetyn neuvottelutilan ja keittiötilojen käyttö, aulapalvelu sekä yhteiskäyttöisten tilojen siivous. POOLista voit vuokrata oman tilasi jatkeeksi tai omaksi toimistoksi pientoimiston joustavin sopimusehdoin. POOL Work -toimistot voivat toimia päätoimitilana, satelliittitoimistona, projektin työskentelytilana tai innovaatiotilana.
Elimäenkatu 17-19 eli Vallilan VALLI on moderni toimistokiinteistö hyvien liikenneyhteyksien varrella Helsingin Vallilassa. Se on rakennettu vuonna 1999. Kiinteistön tilat ovat muuttovalmiiita, mutta niitä on mahdollista muokata ja remontoida yrityksen tarpeiden mukaan. Kiinteistössä on myös hyvät palvelut ja runsaasti pysäköintitilaa.
Kysy lisää numerosta 044 723 4700 tai info@bref.fi. Palvelumme on tilanhakijoille ilmainen.
Bureau Real Estate Finland Oy
Lars Sonckin kaari 16, 02600 Espoo
Näytä puhelinnumero
0447234700
Bureau Real Estate Finland Oy
https://www.bref.fi