Videoesittely
Vuokrataan toimistotilat - Tampere
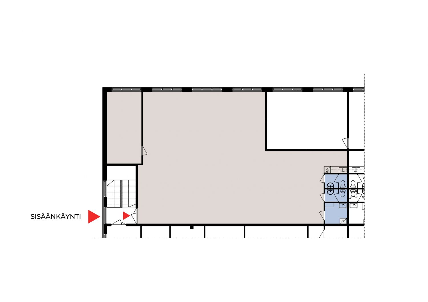
Toimistotila 209 m2, Possijärvenkatu 1, Lielahti, Tampere #10783092
2. kerroksen toimistotila, jossa avotilaa, yksi toimistokoppi, keittokomero, kaksi wc:tä, siivouskomero. Vuokra 3135 € kuukaudessa.
Osoite
Possijärvenkatu 1, Tampere
Tilatyyppi
Toimistotilaa
209 m2
Vuokra
3135 €
Kiinteistö
Kiinteistöä ympäröi lukuisat Lielahden palvelut, muun muassa Gigantti, Prisma, Tokmanni, Lidl. Kiinteistön takaa löytyvät Taninkadun loistavat palvelut ravintoista erikoismyymälöihin. Kaikki tarvittava lähellä – kävelyetäisyyden päässä.
Possijärvenkatu 1 yhteistilat saneerattiin vuonna 2022. Lattia vaihdettiin tyylikkääseen vinyylilattiaan, käytävien seinät maalattiin ja opastekyltit uusittiin.
Possijärvenkatu 1 yhteistilat saneerattiin vuonna 2022. Lattia vaihdettiin tyylikkääseen vinyylilattiaan, käytävien seinät maalattiin ja opastekyltit uusittiin.
Sijainti
Possijärvenkatu 1 on monipuolisten palveluiden välittömässä läheisyydessä Lielahden ytimessä vain 10 minuutin ajomatkan päässä Tampereen keskustasta.
Ympäristö
Alueen infraa on kehitetty runsaasti viime vuosina parantamaan liikenteen sujuvuutta ja turvallisuutta. Mm. Rantatunneli sekä liittymän ja Lielahden Enqvistinkadun välillä kolmas lisäkaista.
Kiinteistön vierestä Lielahdenkadulta kulkevat Tampereen seudun joukkoliikenteen bussinumerot 9, 12 ja 19. Turvesuonkadulta kulkevat bussinumero 4, 34 sekä 80. Tulevaisuudessa Lielahteen pääsee myös ratikalla.
Kiinteistön vierestä Lielahdenkadulta kulkevat Tampereen seudun joukkoliikenteen bussinumerot 9, 12 ja 19. Turvesuonkadulta kulkevat bussinumero 4, 34 sekä 80. Tulevaisuudessa Lielahteen pääsee myös ratikalla.
Pysäköinti
Työmatka-autoilijoiden sekä asiakkaiden käytössä on kiinteistön edessä tilava ja ilmainen parkkialue. Etupihan parkkialueen lisäksi rakennuksen takaa löytyy parkkipaikkoja henkilökunnan pysäköintiä varten. Lisäksi takapihalta on mahdollista vuokrata auton lämmitystolppapaikkoja.
Palvelut
Kiinteistössä toimii tällä hetkellä useita eri toimialojen yrityksiä, muun muassa jälleenmyyjiä, toimistoja sekä kauneuden ja hyvinvoinnin yrityksiä. Näitä toimijoita ovat esimerkiksi Eurokangas, OZ-Baby, Brothers, Mattokeidas, Eläinklinikka Katse sekä intialaista ruokaa tarjoava Bollywood. Lounastarjonta on Lielahden alueella vertaansa vailla. Possijärvenkadulla on lounasta tarjoava Wigren ja rakennuksen takana sijaitseva Kruunukeskus, josta löytyy American Diner ja Subway. Kävelyetäisyydellä on myös Prisma ja Lielahtikeskus lukuisine palveluineen.
Muuta
Possijärvenkatu 1 yhteistilat saneerattiin vuonna 2022. Lattia vaihdettiin tyylikkääseen vinyylilattiaan, käytävien seinät maalattiin ja opastekyltit uusittiin.
Vapautuu
Kysy
Rakennusvuosi
1984
Kerros
2
Energiatehokkuusluokka
-
Ota yhteyttä
Meijou Oy
Saapastie 2
Näytä puhelinnumero
+358 40 555 5413
Marko Kuusisto
Toimitusjohtaja
Näytä puhelinnumero
+358 20 1980 200
Pyydä lisätietoa
