Vuokrataan toimistotilat - Helsinki
Siltasaarenkatu 10, Hakaniemi, 00530 Helsinki #10783040
Ihana, tunnelmainen, näyttävä ja kaunis.
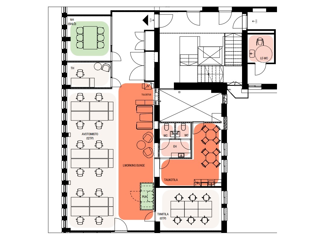
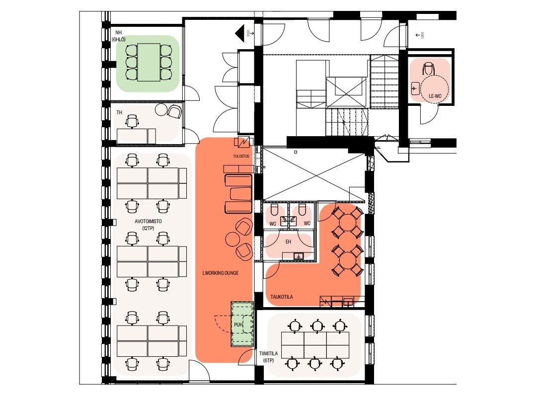
Näin voisi kuvata tätä täydellisesti saneerattua kiinteistöä. Tarjolla suositun Siltasaari10:n 201 m2 toimistotila. Ilmavan avotilan lisäksi tilassa on neuvotteluhuone, tiimihuone, työhuone, omat vessat sekä taukotila keittiöineen. Kysythän vapautumisen aikataulun meiltä.
Kuvat talon muista toimistoista.
Alun perin vuonna 1913 valmistunut Elannon tavaratalorakennus on nyt Siltasaari 10. Kiinteistö tarjoaa viihtyisän ja inspiroivan työympäristön ja yksilölliset työtilat Hakaniemen sydämessä. Klassiset maamerkkirakennukset ja historialliset paikat ovat saaneet rinnalleen modernit tilat, palvelut ja ravintolakulttuurin, jotka hengittävät samaan tahtiin ympäröivän kaupunkitilan kanssa. Alueen alkuperäiset kauppapaikat, Hakaniemen tori ja kauppahalli, elävät sulassa sovussa uusien palveluiden kanssa.
Siltasaari 10 on historiallinen kohde, joka on tuotun tähän päivään täydellisellä saneerauksella historiaa kunnioittaen. Vastuullisuuden myötä kiinteistölle on myönnetty LEED Platinum -ympäristösertifikaatti. Siltasaari 10:ssä on digitalisoitu lämmityksenohjaus ja ilmanvaihto sekä yleinen energiatehokkuus hyvällä tasolla. Töhinin pyöräilevät osaavat arvostaa kiinteistön 400 pyörän pyörähallia ja pyörähuoltoasemaa.
Croisette on uusi ja innovatiivinen toimitilojen välitysyritys Suomessa. Meillä on vahva halu auttaa teitä löytämään paras toimitilaratkaisu mahdollisimman vaivattomasti.
Huomaathan, että kaikki vapaat ja vapautuvat tilat ovat kauttamme saatavilla. Osa tiloista on hiljaisessa markkinoinnissa, mutta ottamalla meihin yhteyttä saat nekin tietoosi.
Palvelumme on tilanhakijoille täysin maksutonta.
Hissi
Croisette Real Estate Partner
Erottajankatu 5 A 6, 00130 Helsinki
Näytä puhelinnumero
+358 400 585 857
Croisette Vuokraus
Näytä puhelinnumero
+358400585857
