Vuokrataan toimistotilat - Helsinki
Kiila, Ruoholahdenkatu 21, Ruoholahti, 00180 Helsinki #10782965
Upeilla maisemilla ja omalla terassilla varustettu 443 m² toimisto Ruoholahdessa
Osoite
Ruoholahdenkatu 21, 00180 Helsinki
Tilatyyppi
Toimistotilaa
465 m2
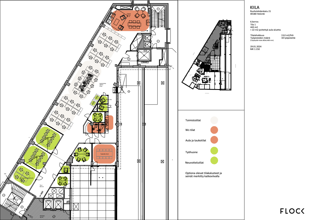
Pohjapiirros
Kiinteistö
Kuudennen kerroksen muuttovalmis, tyylikkäällä omalla terassilla varustettu tila.
Tila on 443 m² + 22 m² jyvitettyä tilaa.
Merellisen Ruoholahden, hektisen Baanan ja sykkivän Kampin kainaloon kiilautuu teollisuushenkinen kortteli, joka toimi kirjapaino- ja mediatalona aina 80-luvulle saakka. Peruskorjauksen myötä kiinteistö on palautettu alkuperäiseen loistoonsa näyttävine ristikkoikkunoineen. Kiilan modernit ja joustavat toimitilat taipuvat moneen tarkoitukseen. Rakennuksesta löytyy joustavan työn konsepti POOL, josta löytyy pieniä studioita sekä erilaisia neuvottelu- ja projektityötiloja. Niitä voivat vuokrata talon käyttäjät ja ulkopuoliset yritykset. Toimitilaa on seitsemässä kerroksessa peräti 10 000 neliötä.
Tila on 443 m² + 22 m² jyvitettyä tilaa.
Merellisen Ruoholahden, hektisen Baanan ja sykkivän Kampin kainaloon kiilautuu teollisuushenkinen kortteli, joka toimi kirjapaino- ja mediatalona aina 80-luvulle saakka. Peruskorjauksen myötä kiinteistö on palautettu alkuperäiseen loistoonsa näyttävine ristikkoikkunoineen. Kiilan modernit ja joustavat toimitilat taipuvat moneen tarkoitukseen. Rakennuksesta löytyy joustavan työn konsepti POOL, josta löytyy pieniä studioita sekä erilaisia neuvottelu- ja projektityötiloja. Niitä voivat vuokrata talon käyttäjät ja ulkopuoliset yritykset. Toimitilaa on seitsemässä kerroksessa peräti 10 000 neliötä.
Kulkuyhteydet
Metroasema 800 m, Raitiovaunupysäkki 200 m, Bussipysäkki 200 m, Juna-asema 2,1 km, Lentoasema 21,6 km
Vapautuu
Heti
Rakennusvuosi
1952
Saneerausvuosi
2019
Kerros
6 / 7
Energiatehokkuusluokka
Ei lain edellyttämää energiatodistusta
Näkyvällä paikalla
Hissi
Ota yhteyttä
ScanReal Oy LKV
Opus Business Park
Hitsaajankatu 24
00810 Helsinki
info@scanreal.fi
Puh:
Näytä puhelinnumero
020 730 8830
Sopivat toimitilat yhdellä otolla!
Kartoitamme toimitilatarpeesi ja etsimme yrityksellesi parhaiten sopivat vapaat toimitilat. Koska vuokranantajat maksavat palvelumme, on tämä yrityksellesi veloituksetonta.
OTA YHTEYTTÄ - SOVI NÄYTTÖ!
Kaikki kohteemme eivät ole netissä, kerro tilatarpeesi niin kartoitamme vaihtoehdot.
Palvelumme on tilanhakijalle ilmainen
Pyydä lisätietoa
