Vuokrataan toimistotilat - Helsinki
Itämerenkatu 1, Ruoholahti, 00180 Helsinki #10782961
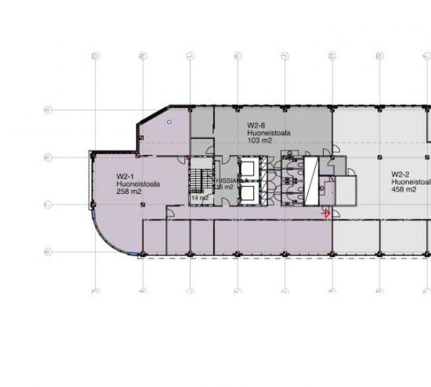
Tämän toisen kerroksen toimiston kaarevaa päätyä ja seinustaa vuoraavat ikkunat, jotka päästävät sisään runsaasti valoa. Monipuolinen tilajako mahdollistaa huonetoimisto-, monitila-, tiimi- tai avotyöskentelyn itsenäisesti tai porukalla. Tilassa on oma keittiönurkkaus sekä wc:t.
Ruoholahden Westport on erinomaisella sijainnilla, lähellä metroa, merta ja palveluita. Vuonna 1998 valmistunut moderni liikerakennus, jonka tilat ja palvelut vastaavat nykypäivän vaatimuksia.
Talossa vuokralaisia palvelevat kaksi 12 hengen ja kuusi neljän hengen neuvottelutilaa. Lisäksi käytettävissä on uusi 20 hengen studio, joka taipuu vaikkapa hybriditapahtumien kisakatsomoksi tai kokoustilaksi. Westportista löytyy myös nykyaikainen kuntosali sekä viihtyisät ja avarat sauna- ja kokoustilat. Katutasossa ravintola tarjoilee edullista, laadukasta lounasta.
Talon valomainospaikat ovat varmaan yhdet Helsingin huomatuimmat.
Me Croisettella autamme teitä löytämään teille parhaat tilat! Olemme puolueettomia asiantuntijoita ja tunnemme toimitilamarkkinat, talot sekä tilat vankalla kokemuksella. Meillä on välityksessä kaikki toimitilat ja tiedämme niiden alustavat vuokratasot.
Tehtävämme on tehdä toimitilahaustanne onnistunut ja helppo. Saamme palkkiomme kiinteistönomistajalta, joten sinulle palvelumme on täysin maksuton.
Hissi
Croisette Real Estate Partner
Erottajankatu 5 A 6, 00130 Helsinki
Näytä puhelinnumero
+358 400 585 857
Croisette Vuokraus
Näytä puhelinnumero
+358400585857
